RESOLUCIÓN 1509 DE 2009
(junio 5)
Diario Oficial No. 47.377 de 11 de junio de 2009
MINISTERIO DE COMERCIO, INDUSTRIA Y TURISMO
<NOTA DE VIGENCIA: Resolución derogada por el artículo 1 de la Resolución 1002 de 2014. A partir del 24 de abril de 2015>
Por la cual se modifica la Resolución 0936 del 21 de abril de 2008 que incorporó la Resolución 14471 del 14 de mayo de 2002.
EL MINISTRO DE COMERCIO, INDUSTRIA Y TURISMO,
en ejercicio de sus facultades constitucionales y legales y en especial las conferidas en el artículo 78 de la Constitución Política de Colombia, en artículo 3o de la Ley 155 de 1959, en las Decisiones 376 de la Comisión del Acuerdo de Cartagena, 419, 506 y 562 de la Comisión de la Comunidad Andina, y en el numeral 4 del artículo 2o del Decreto-ley 210 de 2003, y
CONSIDERANDO:
Que de acuerdo con lo previsto en el artículo 78 de la Constitución Política de Colombia, serán responsables, de acuerdo con la ley, quienes en la producción y en la comercialización de bienes y servicios, atenten contra la salud, la seguridad y el adecuado aprovisionamiento a consumidores y usuarios.
Que el artículo 3o de la Ley 155 de 1959 preceptúa que el Gobierno intervendrá en la fijación de normas sobre pesas y medidas, calidad, empaque y clasificación de los productos, materias primas y artículos o mercancías con miras a defender el interés de los consumidores.
Que el numeral 7 del artículo 28 del Decreto 210 de 2003, dispone que es función del Ministerio de Comercio, Industria y Turismo coordinar en el nivel nacional la elaboración de los reglamentos técnicos que se requieran para la defensa de los objetivos legítimos del país y estudiar y aprobar el programa anual de elaboración de los reglamentos que se requieran en coordinación con los diferentes sectores productivos y entidades interesadas, así como elaborar aquellos que no correspondan a una entidad o autoridad diferente, verificando que mediante la elaboración y expedición de reglamentos técnicos, no se creen obstáculos innecesarios al Comercio, de acuerdo con la legislación vigente y los acuerdos internacionales de los cuales Colombia hace parte.
Que en el artículo 3o de la Resolución 0936 del 21 de abril de 2008, expedida por el Ministerio de Comercio, Industria y Turismo, se dispuso que, en lo no previsto en la Resolución 1023 del 25 de mayo de 2004, se aplicará el contenido de la Resolución 14471 del 14 de mayo de 2002 expedida por la Superintendencia de Industria y Comercio.
Que la diversidad de criterios en la aplicación de procedimientos de inspección de instalaciones en servicio por parte de organismos de certificación e inspección, han generado situaciones de conflicto con usuarios del servicio, por lo que se requiere de un procedimiento único para llevar a cabo este tipo de actividades.
Que en mérito de lo expuesto, el Ministerio de Comercio, Industria y Turismo;
RESUELVE:
ARTÍCULO 1o. <Resolución derogada por el artículo 1 de la Resolución 1002 de 2014. Rige a partir del 24 de abril de 2015> Adiciónese a la Resolución 936 del 21 de abril de 2008, el siguiente artículo:
Artículo 3-1. Inspección de instalaciones en servicio – Para efectos de la inspección de instalaciones en servicio de gas combustible gaseoso, se deberán tener en cuenta las definiciones, el procedimiento para la evaluación de conformidad de instalaciones en servicio, y el procedimiento único de Inspección en Colombia de instalaciones en servicio que suministran combustible gaseoso destinado a usos residenciales y comerciales y de sus correspondientes artefactos a gas, que se detallan en este artículo.
Instalaciones en servicio: Son las instalaciones existentes de que trata la Resolución 14471 del 14 de mayo de 2002, incorporada a la Resolución 0936 del 21 de abril de 2008. Comprende la red interna, el medidor, registros de corte y los artefactos conectados a ella, que se hayan puesto en servicio antes de la inspección de que trata la presente resolución.
Personal calificado: Son las personas que cuentan con un certificado de competencia laboral expedido por autoridad competente, y están inscritos en el Registro de Fabricantes e Importadores de productos o servicios sujetos al cumplimiento de Reglamentos Técnicos, establecido por la Superintendencia de Industria y Comercio – SIC o la entidad que haga sus veces.
Defecto crítico: Se entiende por defecto crítico todo hallazgo producto de la inspección técnica por parte de un organismo de inspección acreditado en los términos aquí estipulados, catalogado como tal en el procedimiento único que en esta Resolución se describe, cuya valoración conduce a calificar que la instalación en servicio adolece de algún defecto severo, que, según los criterios establecidos en la presente Resolución, puede conllevar a la suspensión inmediata del servicio de suministro del gas combustible gaseoso al usuario por parte del distribuidor.
Si como resultado de la inspección se determina que existen defectos críticos, las reparaciones que se requieran para subsanarlos corresponderán al usuario, sin menoscabo de las acciones legales que dicho usuario desee emprender. En cualquier caso, tales reparaciones deberán ser realizadas por personal que cuente con un certificado de competencia laboral e inscripción en el registro ante la SIC.
Si como resultado de la inspección se determina que los defectos críticos se deben a modificaciones de la instalación o adiciones de gasodomésticos no reportados por el usuario al distribuidor, las reparaciones que se requieren para subsanar estos defectos corresponderán al usuario y en cualquier caso deberán ser realizadas por personal que cuente con un certificado de competencia laboral e inscripción en el registro ante la SIC. Tales modificaciones se deben certificar en los términos de la Resolución 14471 de 2002.
Si en la inspección se encuentran defectos críticos, independientemente de que estos puedan ser corregidos por personal calificado para ello en el momento de la inspección, el organismo de inspección que la realizó deberá informar por escrito a la SIC sobre tales defectos, o los que se corrigieron durante la inspección, dentro de los tres (3) meses siguientes a la fecha de la inspección, y todos ellos deberán ser explicados al usuario y reportados en el informe de resultados de la inspección.
Bajo una condición de defecto crítico, procederá la corrección inmediata de dicho defecto, o de no ser posible esta corrección inmediata, procederá la suspensión inmediata del servicio. Esta suspensión, a cargo del distribuidor del gas combustible, prevalecerá hasta tanto el usuario demuestre ante dicho distribuidor que se realizaron las correcciones correspondientes.
Se considerará corrección inmediata del defecto crítico el conjunto de acciones realizadas durante la inspección, llevadas a cabo por personal competente para este efecto, bajo responsabilidad y costo por parte del usuario, cuyo fin es suprimir las causas del defecto. Dichas acciones pueden consistir en reparación, cambios, taponamiento o precintado de puntos de conexión de artefactos.
Defecto no crítico: Se entiende por defecto no crítico, todo hallazgo producto de la inspección técnica por parte de un organismo de inspección acreditado en los términos aquí estipulados, catalogado como tal en el procedimiento único, el cual no conlleva incumplimiento de los requisitos estipulados en la Resolución 14471 del 14 de mayo de 2002, pero que requiere ser corregido.
Bajo esta situación la instalación puede continuar en servicio, con la condición de que el defecto no crítico sea corregido por personal competente para este efecto, a cargo del usuario, en un término fijado por el distribuidor que en ningún caso debe superar los dos (2) meses contados a partir de la fecha de la inspección. Si vencido este plazo persiste al menos un defecto no crítico, la empresa distribuidora valorará nuevamente la situación y, según el caso, podrá suspender el servicio hasta tanto se corrija el defecto.
Los defectos no críticos que durante la inspección no se puedan corregir, deberán ser explicados al usuario y reportados en el informe de resultados de la inspección para efectos de que se corrijan.
Una vez corregidos los defectos críticos, así como los defectos no críticos, y finalizada la inspección o inspecciones de la instalación que se requieran, en algún sitio visible del recinto donde se ubiquen gasodomésticos, sobre una superficie limpia, el inspector debe pegar una etiqueta permanente que muestre como mínimo la siguiente información:
a) Fecha de la inspección.
b) Nombre y apellido del inspector.
c) Nombre del organismo de inspección.
d) Instrucciones para uso seguro de la instalación: No obstrucción de las rejillas de ventilación, deber de informar al distribuidor del gas combustible sobre cualquier modificación a la instalación o la adición de gasodomésticos, no sobrepasar el tiempo de uso del calentador de agua de paso continuo dado por el fabricante, emplear siempre personal calificado para realizar reparaciones o mantenimientos.
La etiqueta a que se refiere el presente artículo debe tener propiedades y características técnicas de seguridad que conlleven su destrucción al ser removida de la superficie sobre la cual ha sido adherida y debe poder permitir su limpieza. El usuario deberá velar por su conservación y limpieza.
Procedimiento para la evaluación de conformidad de instalaciones en servicio – Una vez ejecutado el procedimiento de inspección de que trata este artículo, se deberá generar un informe de resultados de la inspección expedido por un organismo de inspección acreditado en Colombia conforme los procedimientos contemplados en la Norma NTC-ISO-IEC 17020, que da cumplimiento al requisito del Literal b) del numeral 1.2.6.4.2 de la Resolución 14471 del 14 de mayo de 2002; en dicho informe, que deberá ser firmado tanto por el inspector como por el usuario, deberá constar que la instalación continúa o no en servicio. Copia de este informe deberá ser entregado al usuario al finalizar la inspección.
Los organismos de inspección que a la fecha de entrada en vigencia de la presente Resolución han sido acreditados en Colombia para revisión de las instalaciones en servicio, siempre y cuando tengan su acreditación vigente, podrán continuar expidiendo informes de resultados de inspección en las condiciones bajo las cuales fueron acreditados.
Estos organismos acreditados tendrán un plazo de seis (6) meses contados a partir de la entrada en vigencia de la presente resolución para informar por escrito a la entidad de acreditación los cambios en sus procedimientos de inspección de acuerdo con lo establecido en esta resolución. Si el organismo acreditado no presenta esta información dentro del plazo estipulado, no podrá continuar prestando los servicios de inspección contemplados en esta resolución.
Las empresas distribuidoras de gas combustible autorizadas por la SIC para certificación directa de que trata el numeral 1.2.6.4.3 de la Resolución 14471 de 2002, que cuenten con un sistema de gestión certificado de acuerdo con normas ISO 9001 – 9002, ISO 9000 o equivalentes, solo para los efectos de inspección señalados en este artículo, hasta por un lapso de doce (12) meses contados a partir de la fecha de entrada en vigencia de la presente Resolución podrán declarar el cumplimiento de las instalaciones en servicio de acuerdo con el procedimiento aquí establecido, y para ello suscribirán la Declaración de Conformidad del Proveedor para estas instalaciones, de acuerdo con los requisitos y formatos establecidos en la Norma Técnica Colombiana NTC/ISO/IEC 17050 (Partes 1 y 2).
Una vez vencido el plazo estipulado en el inciso anterior, si estas empresas o sus contratistas desean continuar prestando los servicios de inspección estipulados en esta Resolución, para el efecto debieron haberse constituido como organismos de inspección acreditados. Si al vencimiento de este plazo la entidad de acreditación de Colombia no ha otorgado la acreditación correspondiente, tales empresas o sus contratistas podrán continuar declarando el cumplimiento de las instalaciones en servicio bajo las condiciones aquí estipuladas, hasta tanto la entidad de acreditación de Colombia les otorgue la acreditación para que puedan ejercer en adelante su actividad como organismos de inspección acreditados.
Estas empresas autorizadas tendrán un plazo de seis (6) meses contados a partir de la entrada en vigencia de la presente Resolución para adoptar el procedimiento único aquí establecido y para remitir a la entidad de acreditación de Colombia la solicitud de acreditación como organismo de inspección, junto con la documentación requerida para ello.
Si la empresa autorizada no remite la solicitud y documentación pertinente a la entidad de acreditación dentro del plazo estipulado, o esta última niega la acreditación, dicha empresa no podrá continuar prestando los servicios de inspección contemplados en esta resolución.
El personal que actualmente presta los servicios técnicos en el campo de instalaciones de gas objeto de esta Resolución, que esté inscrito ante la SIC pero que no cuenta con certificado de competencia laboral, tendrá plazo de un (1) año contado a partir de la fecha de publicación de esta Resolución para gestionarlo y obtenerlo. Transcurrido este plazo le será exigible dicho documento y estar inscrito ante la SIC para efectos de que puedan continuar prestando los servicios técnicos que demande el cumplimiento de la presente resolución.
<Inciso eliminado por el artículo 1 de la Resolución 3024 de 2009>
Procedimiento único de inspección en Colombia de instalaciones en servicio que suministran combustible gaseoso destinado a usos residenciales y comerciales y de sus correspondientes artefactos a gas.
1. Objeto del procedimiento único de inspección.
Proporcionar a los organismos de inspección acreditados en Colombia directrices que se deben seguir para la inspección en todo el territorio nacional de instalaciones en servicio que suministran combustible gaseoso destinado a usos residenciales y comerciales y sus correspondientes artefactos a gas, con el fin de verificar si están operando en condiciones de seguridad, o presentan “defectos” que generen riesgos actuales o potenciales para los usuarios, y que en consecuencia deben ser corregidos.
2. Definiciones:
2.1. Red interna. De acuerdo con el numeral 14.16 de la Ley 142 de 1994, es el conjunto de redes, tuberías, accesorios y equipos que integran el sistema de suministro del servicio público al inmueble a partir del medidor. Para edificios de propiedad horizontal o condominios, es aquel sistema de suministro del servicio al inmueble a partir del registro de corte general cuando lo hubiere.
2.2 Declaración de Conformidad del Proveedor – DCP
Formulario diligenciado que está respaldado por una documentación de apoyo, normalizados con base en las NTC- ISO/IEC 17050 (Partes 1 y 2), mediante la cual el emisor (organización o persona emisora), con el fin de satisfacer la demanda de confianza por parte del mercado y las autoridades reguladoras, declara y asegura bajo su responsabilidad que el objeto identificado (que puede ser un producto, servicio, proceso, sistema de gestión, persona u organismo) cumple aquellos requisitos especificados a los que se refiere la declaración, y deja en claro quién es el responsable de dicha conformidad y declaración.
2.3 Espacio confinado (NTC 3631 del 26 de agosto de 2003 primera actualización)
Recinto interior cuyo volumen es menor de 3,4 m3 por cada kilovatio de potencia nominal agregada o conjunta de todos los artefactos a gas instalados.
Nota: La potencia nominal agregada o conjunta no contempla los artefactos a gas con circuito de combustión sellados o de cámara estanca.
2.4 LIE - Límite inferior de explosividad.
Según la NTC 5347 ratificada el 25 de mayo de 2005, norma que es una adopción modificada (MOD) por redacción de la norma UNE EN 50194:2001:
Límite inferior de explosividad (LIE) es la relación volumétrica de gas o vapor inflamable en el aire por debajo de la cual no se puede formar una atmósfera explosiva gaseosa.
3. Información previa a la inspección.
Previamente a la realización del procedimiento único de inspección, se debe verificar que exista al menos la siguiente información:
a) Fecha de puesta en servicio de la instalación.
b) Fecha de la última inspección, cuando aplique.
c) Solicitud propia del usuario, cuando aplique.
4. Aspectos a verificar durante la inspección
4.1 Hermeticidad de la instalación
Una instalación hermética se considera sin defectos cuando no presenta fugas de combustible gaseoso.
Para comprobar la hermeticidad de la instalación se deben inspeccionar las siguientes partes en cada caso:
a) Edificaciones unifamiliares: centro de medición y la línea individual.
b) Edificaciones multifamiliares: la línea matriz, centro de medición y la línea individual.
c) Edificaciones comerciales: la línea matriz cuando existe, centro de medición y la línea individual.
Cuando una línea matriz alimenta a más de un usuario, la inspección de dicha línea se realizará por una sola vez en el periodo que le corresponda.
4.1.1 Hermeticidad del Centro de Medición.
Defecto crítico:
El centro de medición se encuentra en esta situación cuando, en las condiciones en que se encuentre funcionando normalmente, la concentración de gas medida en alguno de sus puntos de conexión es mayor a 20% del Límite Inferior de Explosividad - LIE.
Defecto no crítico:
El centro de medición se encuentra en esta situación cuando la concentración de gas medida en alguno de sus puntos de conexión es menor o igual a 20% del LIE.
4.1.2 Hermeticidad de la instalación
Los métodos para verificar la hermeticidad son los siguientes:
a) Detector de fugas.
b) Caudalímetro o Medidor.
c) Prueba de presión con aire o gas inerte y manómetro.
d) Agua jabonosa
Para los métodos a), b) y d), la detección de fugas deberá hacerse a la presión de servicio de la instalación.
Cuando el procedimiento involucre a los artefactos conectados a la instalación se utilizará solamente el método a). Para este caso se debe verificar que se haya evacuado el gas que se acumula entre la válvula del artefacto y los inyectores y los gases producto de la combustión en caso de estar encendido el equipo
4.1.2.1 Procedimiento utilizando detector de fugas
Defecto crítico:
La instalación se encuentra en esta situación cuando la concentración de gas medida cerca a su recorrido que esté a la vista, o en gabinete o recintos por los cuales discurre, es mayor a 0,1% en volumen (1.000 partes por millón - ppm).
Defecto no crítico:
La instalación se encuentra en esta situación cuando la concentración de gas medida cerca a su recorrido que esté a la vista, o en gabinete o recintos por los cuales discurre, es menor o igual a 0,1% en volumen (1.000 ppm).
4.1.2.2 Procedimiento utilizando caudalímetro o medidor
Para realizar esta prueba se deben cerrar todas las perillas de control de los gasodomésticos, registrar la lectura del medidor/caudalímetro y esperar un tiempo no inferior a doce (12) minutos, al cabo del cual se registrará la lectura final.
Si el caudalímetro o medidor no registran ninguna lectura se puede concluir que la instalación es hermética. De lo contrario estará registrando alguna fuga, la cual debe tratarse como lo especificado en el numeral 4.1.2.1 – Procedimiento utilizando detector de fugas, de la presente resolución.
4.1.2.3 Procedimiento empleando aire o gas inerte y manómetro
Antes de utilizar este método se deben desconectar los artefactos conectados a la instalación.
Para realizar esta prueba se instala un manómetro en el punto de inyección de aire o gas inerte, sometiendo a la instalación a la presión y tiempos de prueba definidos de conformidad con la NTC-2505 (tercera actualización).
Es necesario eliminar el aire utilizado para la prueba después de haberla realizado.
Si el manómetro no registra ninguna lectura se puede concluir que la instalación es hermética, que no tiene escape. Si la presión no se estabiliza después de transcurrido el tiempo mínimo de prueba es porque hay escape, por tanto se estará en presencia de alguna fuga, la cual debe tratarse como lo especificado en el numeral 4.1.2.1 – Procedimiento utilizando detector de fugas, de la presente Resolución.
4.1.2.4 Procedimiento empleando agua jabonosa
Este procedimiento es exclusivamente de uso complementario a alguno de los procedimientos antes mencionados, y su fin es el de precisar la ubicación de las fugas en los tramos visibles y accesibles de la instalación.
4.2 Existencia y operatividad de las válvulas de corte.
A lo largo del trazado de la instalación se debe verificar la existencia y operatividad de las válvulas dispuestas para lograr el seccionamiento de los diferentes tramos.
Todas las válvulas existentes en la instalación deben ser verificadas en cuanto a su operatividad efectuando para ello su accionamiento secuencial, empezando con la válvula de corte del suministro para cada artefacto a gas.
En particular se debe proceder a:
a) Verificar la existencia y operatividad de las válvulas de corte asociadas a cada uno de los artefactos a gas.
b) Verificar que existan válvulas a la entrada de cada medidor cuando se tienen centros de medición colectivos.
c) Verificar la operatividad de las válvulas existentes en la instalación accionándolas en forma secuencial.
d) Verificar que las válvulas de corte a la entrada de cada medidor no permitan el paso de gas.
Defectos críticos:
a) Inexistencia de la válvula a la entrada del medidor de la instalación.
b) Cuando existe la válvula de corte que controla toda la instalación, pero no suspende totalmente el paso de gas cuando se cierra.
Defectos no críticos:
a) Inexistencia de válvula que controla el flujo de gas para un artefacto.
b) Cuando la válvula que controla el flujo de gas para un artefacto no suspende totalmente el paso de gas.
c) Cuando la válvula que controla el flujo de gas para un artefacto no es de fácil acceso.
4.3 Trazado general de la instalación.
4.3.1 Trazado
Se debe verificar que el trazado de la instalación en sus partes visibles no presente los siguientes defectos.
Defecto crítico:
a) Regulador cuyo mecanismo de control de sobrepresión descargue el gas al interior de la vivienda o recinto.
Defectos no críticos:
Mientras la instalación sea hermética, se podrán considerar como defectos no críticos los siguientes:
a) Presencia de tramos de tubería de polietileno a la vista.
b) Paso de tuberías a la vista por dormitorios o cuartos de baño, cuando los tramos respectivos tienen uniones roscadas y no están encamisadas.
c) Dispositivos de anclaje que no aseguran el soporte de la instalación, cuando esta se encuentra a la vista.
d) Paso por conductos de aire, chimeneas, fosos de ascensores, sótanos y similares sin ventilación, conductos para instalaciones eléctricas y de basuras, en los cuales un escape de gas se pueda esparcir a través del edificio, o por áreas donde haya transformadores eléctricos o recipientes de combustibles líquidos o sustancias cuyos vapores o ellos mismos sean corrosivos.
4.3.2 Materiales
Defecto crítico:
Cuando los materiales no cumplen con lo dispuesto en el literal b) del numeral 1.2.6.3.2 de la Resolución 14471 del 14 de mayo de 2002.
Defecto no crítico:
Cuando los materiales de la instalación presentan deterioro como:
a) Abolladuras que tengan como consecuencia reducción del diámetro en las tuberías.
b) Corrosión.
4.4 Condiciones de ventilación.
En todos los casos se debe verificar que las condiciones de ventilación del recinto se ajusten a lo establecido en la NTC 3631 (primera actualización).
Defecto crítico:
No se satisfacen las condiciones de ventilación del recinto según lo establecido en la NTC 3631 (primera actualización) y la concentración de monóxido de carbono medida en el ambiente es mayor a cero (0) ppm en volumen. Se exceptúa la condición de defecto crítico cuando la concentración de monóxido de carbono medida en el ambiente es cero (0) ppm en volumen, caso en el cual se clasificará como defecto no crítico.
Defectos no críticos:
Cuando las condiciones de ventilación del recinto, voluntaria o involuntariamente, hayan sido obstruidas por parte del usuario.
El inspector valorará la severidad de la obstrucción y determinará la criticidad del defecto.
4.4.1 Medición de monóxido de carbono (CO)
En cada recinto donde están instalados artefactos a gas, independientemente de la potencia instalada o la ventilación de tales recintos, se debe realizar una medición de monóxido de carbono de acuerdo con el siguiente procedimiento:
Se debe realizar una medición de la concentración de monóxido de carbono en tres (3) puntos ubicados a un (1) metro de separación del artefacto a gas de mayor potencia, medido horizontalmente con respecto al artefacto. Las mediciones se deben efectuar con todos los artefactos a gas operando a su máxima potencia en funcionamiento normal, cinco (5) minutos después de haber sido encendidos, teniendo las puertas y ventanas cerradas. En el caso de cocinas, la prueba se hará empleando recipientes de cocción que contengan al menos agua.
Defecto crítico:
Registra una concentración de monóxido de carbono diluido en el ambiente del recinto, mayor o igual a cincuenta (50) ppm en volumen.
Defecto no crítico:
La concentración de monóxido de carbono (CO) diluido en el ambiente de recinto es mayor a 15 ppm y menor a 50 ppm en volumen.
4.5 Instalación, modificación y elementos de control de los artefactos a gas.
Se debe verificar lo siguiente:
Defectos críticos:
a) Artefactos a gas de circuito abierto, ubicados en los recintos destinados exclusivamente a dormitorio, baño o ducha.
b) La existencia y uso de artefactos eléctricos convertidos a gas.
Defectos no críticos:
Utilización de artefactos a gas con piloto de llama abierta en operación, que no cuenten con un sistema de seguridad que corte el flujo de gas en caso de que la llama se apague.
4.5.1 Artefactos a gas para cocción de alimentos (cocinas y hornos)
4.5.1.1 Conectores rígidos y flexibles
Defecto crítico:
Conector flexible en contacto con las partes calientes o llamas de un artefacto que puedan afectar la integridad del conector.
Defectos no críticos:
a) El conector genera obstrucción del flujo normal de gas (estrangulamiento).
b) Conector que suministra gas a más de un artefacto.
c) El conector o su conexión está sometido a esfuerzos de tracción que pueden deteriorarlo.
4.5.1.2 La ubicación de los artefactos a gas para cocción
Defecto crítico:
Los artefactos para cocción están instalados en cuartos de baño, o dormitorios, o en compartimientos tales como armarios, closets, ubicados en el interior de la vivienda.
Defectos no críticos:
a) Cerca de los artefactos se encuentran materiales que por efecto del calor pueden entrar en combustión.
b) Los artefactos para cocción están expuestos a corrientes de aire que afectan su normal funcionamiento.
c) Los artefactos para cocción diseñados para funcionar con gases de la tercera familia, están instalados en sótanos, semisótanos o construcciones similares bajo nivel, que pueden acumular mezclas explosivas gas-aire.
4.5.1.3 Funcionamiento del artefacto
El funcionamiento del artefacto a gas se verifica mediante inspección del aspecto de la llama presente en los quemadores, que evidencia las condiciones de suministro de aire para la combustión.
Defecto crítico:
a) Las llamas del artefacto a gas no son estables (desprendimiento, retroceso, puntas amarillas, presencia de hollín).
Defectos no críticos:
a) Las válvulas (perillas) del artefacto a gas no controlan correctamente el flujo de gas.
4.5.2 Calentadores de agua paso continuo y tipo acumulador
Se incluyen en este numeral los artefactos referenciados en las Resoluciones 1023 de 2004 y 0936 de 2008 expedidas por el Ministerio de Comercio, Industria y Turismo así:
a) Calentadores de agua de paso continuo
b) Calentadores tipo acumulador
c) Calentadores especiales instalados a partir del 28 de abril de 2008.
4.5.2.1 Ubicación e instalación
Defectos críticos:
a) Calentadores de circuito abierto ubicados en recintos destinados a dormitorio, baño o ducha.
b) Calentadores ubicados en compartimientos fabricados con material combustible.
c) Calentadores especiales tipo A definidos por la Resolución 0936 de 2008, instalados a partir del 28 de abril de 2008, excepto si están instalados en un espacio exterior a la edificación.
d) Calentadores especiales tipo A definidos por la Resolución 0936 de 2008 facturados y despachados por el productor al importador o al primer distribuidor en Colombia antes del 28 de abril de 2008, que después del 1o de noviembre de 2008 se encuentren sin conducto de evacuación de los productos de la combustión, excepto si están instalados en un espacio exterior a la edificación.
e) Calentadores especiales tipo A definidos por la Resolución 0936 de 2008 fabricados o en proceso de fabricación antes del 31 de octubre de 2008, que después del 1o de noviembre de 2008 se encuentren sin conducto de evacuación de los productos de la combustión, excepto si están instalados en un espacio exterior a la edificación.
f) Calentadores tipo B o C instalados en el interior de la vivienda que no posean conducto de evacuación de los productos de la combustión.
g) Calentadores que poseen conducto de evacuación pero dicho dispositivo produce revoco o devolución de los productos de la combustión al recinto donde están instalados.
4.6 Ubicación de centros de medición.
Defectos críticos:
a) El centro de medición se encuentra en un área privada de la edificación. Como área privada se entiende la parte de una edificación multifamiliar destinada para fines de habitación (vivienda), y para el caso de edificaciones comerciales, es el área destinada al desarrollo de la actividad comercial.
b) El centro de medición permite escape de gases al interior del área privada.
Defectos no críticos:
a) El centro de medición no está protegido de la acción de agentes externos como impactos o agentes corrosivos.
b) El medidor está en contacto con el piso o nivel del suelo.
c) El armario dificulta la inspección del centro de medición.
d) Almacenamiento de materiales combustibles en el centro de medición.
e) Equipos eléctricos o electrónicos ubicados dentro de los centros de medición, que por su naturaleza pueden ser afectados por la acción de los gases, o por su operación, pueden afectar la instalación.
5. Resultados de la inspección:
| Resultado | Acción |
| Sin defectos | En el informe de resultados de la inspección se declarará que la instalación puede continuar operando normalmente. |
| Con defectos no críticos | La descrita para defectos no críticos. La instalación puede continuar en servicio pero condicionada a que se corrijan dentro del término de dos (2) meses. Puede conllevar a la suspensión del servicio de suministro de gas. |
| Con defectos críticos. | La descrita para defectos críticos. Procede su corrección inmediata o la suspensión inmediata del servicio de suministro de gas. |
ARTÍCULO 2o. VIGENCIA Y DEROGATORIAS. <Resolución derogada por el artículo 1 de la Resolución 1002 de 2014. Rige a partir del 24 de abril de 2015> La presente resolución rige a partir de la fecha de su publicación, modifica el numeral 1.2.6.4.3 – Organismos de Certificación – de la Resolución 14471 del 14 de mayo de 2002 en lo pertinente al procedimiento para la evaluación de la conformidad de instalaciones en servicio de que trata esta Resolución, y deroga las disposiciones que le sean contrarias.
Publíquese, notifíquese y cúmplase.
Dada en Bogotá, D. C., a 5 de junio de 2009.
El Ministro de Comercio, Industria y Turismo,
LUIS GUILLERMO PLATA PÁEZ.
COLOMBIANA 2505
2001-08-01*
INSTALACIONES PARA SUMINISTRO DE GAS DESTINADAS A USOS RESIDENCIALES Y COMERCIALES
E: INSTALLATIONS FOR GAS SUPPLYING INTENDED TO COMMERCIAL AND RESIDENTIAL USES.
CORRESPONDENCIA:
DESCRIPTORES: Instalación de gas; suministro de gas; instalación pública.
I.C.S.: 91.140.40
Editada por el Instituto Colombiano de Normas Técnicas y Certificación (ICONTEC) Apartado 14237 Bogotá, D. C. - Tel. 3150377 - Fax 2221435 Prohibida su reproducción Tercera actualización
Reaprobada 2001-09-26
Editada 2001-10-16
INDICE
1. OBJETO Y CAMPO DE APLICACION
2. DEFINICIONES
3. CONDICIONES GENERALES DE DISEÑO
3.1 ASPECTOS BASICOS
3.2 TIPOS DE REGULACION
3.3 LINEAS INDIVIDUALES
4. MATERIALES Y EQUIPOS
4.1 TUBERIAS
4.2 ELEVADORES
4.3 ACCESORIOS
4.4 VALVULAS DE CORTE
4.5 REGULADORES
4.6 MECANISMOS DE CONTROL DE SOBREPRESION
4.7 MEDIDORES
4.8 SELLANTES
5. REQUISITOS DE CONSTRUCCION DE LA INSTALACION
5.1 INSTALACION DE TUBERIAS
5.2 METODOS DE ACOPLAMIENTO DE TUBERIAS
5.3 PROTECCION CONTRA CORROSION
5.4 ubicacION DE LAS VALVULAS DE CORTE
5.5 CENTROS DE MEDICION
6. VERIFICACION Y ENSAYOS
6.1 VERIFICACIONES
6.2 ENSAYOS
7. PUESTA EN SERVICIO
8. NORMAS QUE DEBEN CONSULTARSE
Anexo A (Informativo)
Tipos de regulación
Tablas
Tabla 1. Distancias para dispositivos de anclaje
Tabla 2. Presiones para el ensayo de hermeticidad Figuras
Figura 1. Distancias mínimas entre tuberías que conducen gas cuando se instalan enterradas y tuberías de otros servicios
Figura 2. Zona de trazado de instalaciones de tuberías embebidas
Figura 3. Detalle de la instalación de las tuberías embebidas
Figura 4. Distancias mínimas entre tuberías que conducen gas instaladas a la vista o embebidas y tuberías de otros servicios
Figura 5. Tuberías por conductos
Figura 6. Protección mecánica de tuberías que conducen gas mediante camisas y conductos
Figura 7. Fijación de tuberías aéreas
Figura 8. Esquema de ubicación de válvulas en las líneas de servicio para suministro de gas
INSTALACIONES PARA SUMINISTRO DE GAS
DESTINADAS A USOS RESIDENCIALES Y COMERCIALES
1. Objeto y campo de aplicación
La presente norma tiene por objeto establecer los requisitos que se deben cumplir en el diseño y construcción de instalaciones para suministro de gas destinadas a usos residenciales y comerciales, así como las pruebas a que se deben someter dichas instalaciones para verificar su operación confiable y segura.
Las instalaciones para suministro de gas cubiertas por esta norma comprenden los sistemas de tubería, accesorios, elementos y otros componentes que van desde la salida de la válvula de corte (registro) en la acometida hasta los puntos de conexión de los artefactos de uso doméstico o comercial que funcionan con gas.
Cuando el combustible suministrado sea GLP, las instalaciones cubiertas por esta norma comprenden desde el punto de salida del regulador situado en la salida del tanque hasta los puntos de conexión de los equipos.
Las instalaciones que emplean GLP como combustible deben cumplir la NTC 3853, la NTC 3853-1 y otras que sean aplicables en relación con los tanques de almacenamiento y las facilidades para el suministro del combustible.
2. Definiciones
Para efectos de esta norma las definiciones conceptuales de: Líneas primarias o redes troncales, Líneas secundarias, Redes de distribución urbana (Red local) y Máxima presión de operación permisible, deben ser las referidas en la NTC 3728 y en la NTC 3838, según sea aplicable. Adicionalmente se deben tener en cuenta las siguientes definiciones:
2.1 Accesorios: elementos utilizados para empalmar las tuberías para conducción de gas. Forman parte de ellos los usados para hacer cambios de dirección, de nivel, ramificaciones, reducciones o acoples de tramos de tuberías.
2.2 Anillo de distribución: parte de las líneas secundarias conformada por accesorios y tuberías que forman mallas o anillos.
2.3 Areas comunes: partes de la edificación que pertenece a los copropietarios o que están afectadas por una servidumbre.
2.4 Areas privadas: partes de una edificación multifamiliar que están destinadas para fines de habitación (vivienda).
En el caso de edificaciones comerciales, son aquellas partes de la construcción destinadas al desarrollo de la actividad comercial.
2.5 Armario, local, caseta o nicho de medidores: recinto debidamente ventilado donde se ubican uno o varios medidores.
2.6 Artefactos a gas: son aquellos en los cuales se desarrolla la reacción de combustión, utilizando la energía química de los combustibles gaseosos que es transformada en calor, luz u otra forma.
2.7 Cabeza de ensayo: elemento conformado por un instrumento de medición y por accesorios que permiten el registro y verificación de la presión suministrada a una instalación en un instante determinado.
2.8 Camisas: tubos que alojan en su interior una tubería de conducción de gas.
2.9 Capacidad instalada: máxima potencia expresada en kW, (Btu/h) que puede suministrar una instalación, la cual depende de las especificaciones de diseño de la misma.
2.10 Centro de medición: conformado por los equipos y los elementos requeridos para efectuar la regulación, control y medición del suministro del servicio de gas para uno o varios usuarios.
2.11 Centro de medición colectivo: conformado por los medidores, reguladores, válvulas de corte del suministro y accesorios necesarios para el control de gas a varios usuarios.
2.12 Centro de medición individual: conformado por el medidor, el regulador, la válvula de corte del suministro y los accesorios para el control de gas a una sola vivienda.
2.13 Conductos: espacio destinado para alojar una o varias tuberías para conducción de gas.
2.14 Conducto de evacuación: destinado a la conducción hacia el exterior de la edificación de los productos generados en el proceso de combustión del gas.
2.15 Conexión abocinada: es aquella donde la hermeticidad se obtiene por la compresión entre las paredes cónicas y esféricas de dos metales en contacto.
2.16 Conexión roscada: es aquella donde la hermeticidad se logra en los filetes de la rosca de la unión.
2.17 Consumo de gas de los artefactos: cantidad de gas utilizado por un artefacto en la unidad de tiempo.
2.18 Detector de gas combustible: equipo que permite verificar la presencia de gas combustible en la atmósfera.
2.19 Distribuidor de gas combustible por redes (distribuidor): quien presta el servicio público domiciliario de distribución de gas combustible.
2.20 Edificación: cualquier construcción para uso residencial o comercial. En el caso de uso residencial puede ser unifamiliar o multifamiliar.
2.21 Elevador: elemento mecánico que permite la transición entre tubería plástica y metálica o viceversa.
2.22 Empaque: elemento elástico de determinadas características fisicoquímicas, que al ser comprimido entre dos piezas metálicas debe producir condiciones de hermeticidad al sistema.
2.23 Factor de coincidencia: relación existente entre la máxima demanda probable y la máxima demanda potencial de gas.
2.24 Familias de gases combustibles: clasificación de los gases en función del índice de Wobbe de acuerdo con lo establecido en la NTC 3527.
2.25 Gasificación: proceso mediante el cual se desplaza el aire o gas inerte existente en una tubería, reemplazándolo por gas combustible.
2.26 Gas tóxico: es aquel constituido por elementos nocivos para la salud, como el monóxido de carbono, generado por la combustión incompleta del gas.
2.27 Instalación para suministro de gas: conjunto de tuberías, equipos y accesorios requeridos para el suministro de gas a edificaciones; está comprendida entre la salida de la válvula de corte en la acometida y los puntos de salida para conexión de los gasodomésticos o equipos para uso comercial que funcionan con gas.
2.28 Juntas mecánicas por compresión: elementos de unión donde la hermeticidad se consigue aplicando presión sobre las paredes de la tubería y los componentes de la unión, mediante un elemento de material plástico.
2.29 Línea de acometida o acometida: derivación de la línea secundaria que llega hasta la válvula de corte del inmueble. En edificios de propiedad horizontal o condominios, la acometida llega hasta la válvula de corte general.
2.30 Línea individual: sistema de tuberías internas o externas a la edificación que permiten la conducción de gas hacia los distintos artefactos de consumo de un mismo usuario. Está comprendida entre la salida de los centros de medición (o los reguladores de presión para el caso de instalaciones para suministro de gas sin medidor) y los puntos de salida para la conexión de los artefactos de consumo.
2.31 Líneas matrices: sistemas de tuberías exteriores o interiores a la edificación (en este último caso, ubicadas en las áreas comunes de la edificación), que forman parte de la instalación para suministro de gas donde resulte imprescindible ingresar a las edificaciones multiusuario con el objeto de accesar los centros de medición. Están comprendidas entre la salida de la válvula de corte en la acometida de la respectiva edificación multiusuario y los correspondientes medidores individuales de consumo.
Nota. En el caso de instalaciones de uso comercial, a criterio de la compañía distribuidora por consideraciones de diseño, la línea individual puede ser considerada como línea matriz hasta los puntos de salida para la conexión de los equipos, inclusive.
2.32 Material autoextinguible: material que sometido a una fuente de ignición arde pero que una vez retirada esta no mantiene la ignición y se extinguen las llamas.
2.33 Material dieléctrico: elemento que aísla eléctricamente dos metales.
2.34 Mecanismo de alivio: dispositivo instalado en un sistema presurizado de tuberías para gas con el objeto de prevenir que la presión dentro del sistema exceda un límite predeterminado, bien sea mediante el venteo hacia la atmósfera exterior del gas excedente o desviándolo hacia sistemas alternos de menor presión que puedan absorberlo sin exceder sus propios límites de seguridad.
2.35 Medidor de consumo: instrumento de medición que registra el volumen de gas suministrado a un usuario para su consumo interno.
2.36 Parámento de la edificación: delimitación del área permitida para construcción, de conformidad con las reglamentaciones legales vigentes.
2.37 Patio de ventilación: espacio ubicado dentro de una edificación, en comunicación directa con el medio exterior.
2.38 Presión de servicio de los gasodomésticos: presión del gas medida en la conexión de entrada al gasodoméstico cuando este se encuentra en funcionamiento.
2.39 Presión normal de suministro: es la presión que deben entregar y mantener las empresas distribuidoras en el punto de entrada de la instalación para suministro de gas.
2.40 Productos de combustión: conjunto de gases, partículas sólidas y vapor de agua que resultan en el proceso de combustión.
2.41 Purga: procedimiento para sacar de una tubería de gas el aire, el gas o una mezcla de ambos.
2.42 Red interna1: es el conjunto de redes, tuberías, accesorios y equipos que integran el sistema de suministro del servicio de gas al inmueble a partir del medidor. Para edificios de propiedad horizontal o condominios, es aquel sistema de suministro del servicio al inmueble a partir del registro de corte general cuando lo hubiere.
2.43 Regulación de la presión: proceso que permite reducir y controlar la presión del gas en un sistema de tuberías hasta una presión especificada para el suministro. La regulación puede efectuarse en una o en varias etapas.
2.44 Regulador de presión: dispositivo mecánico empleado para disminuir la presión de entrada y regular uniformemente la presión de salida de un sistema.
2.45 Sellante: sustancias o elementos destinados a garantizar la hermeticidad en montajes mecánicos.
2.46 Semisótano: entrepiso de una edificación, ubicado parcialmente por debajo del nivel del terreno.
2.47 Soldadura blanda capilar: Es aquella soldadura en la que la temperatura de fusión del metal de aporte es inferior a 500 oC.
2.48 Soldadura fuerte capilar: es aquella soldadura en la que la temperatura de fusión del metal del aporte es igual o superior a 500 oC.
2.49 Sótano: entrepiso de una edificación, ubicado por debajo del nivel del terreno.
2.50 Trazado: recorrido de un sistema de tuberías para suministro de gas dentro o fuera de una edificación.
2.51 Tubería a la vista: tuberías sobre la cual hay percepción visual directa.
2.52 Tubería de venteo: tuberías conectadas al orificio de alivio del regulador de presión usadas para conducir a la atmósfera o a sitios ventilados el gas expulsado por el regulador en caso de una sobrepresión en el sistema o una ruptura en el diafragma del regulador.
2.53 Tubería embebida: tubería incrustada en una edificación cuyo acceso sólo puede lograrse mediante la remoción de parte de los muros o pisos del inmueble.
2.54 Tubería enterrada: tuberías instaladas dentro del suelo.
2.55 Tuberías ocultas: son aquellas tuberías sobre las cuales no hay una percepción visual directa. Pueden ser: embebidas, enterradas o por un conducto.
2.56 Tuberías por conducto: tuberías instaladas en el interior de conductos o camisas.
2.57 Usuario: persona natural o jurídica que se beneficia con la prestación del servicio de distribución de gas, bien como propietario del inmueble en donde se presta, o como receptor directo del servicio.
2.58 Unión mecánica: empalme entre dos tuberías mediante accesorios o elementos que proporcionan hermeticidad sin que haya continuidad entre los materiales de las tuberías a diferencia de las uniones soldadas. Las uniones mecánicas pueden ser desmontables o no y son de diversos tipos: abocinado, roscado, de anillo de ajuste y acoples por compresión entre otros.
2.59 Vivienda: parte de la edificación destinada para fines de habitación.
3. Condiciones Generales de Diseño
3.1 Aspectos Básicos
El diseño de instalaciones para suministro de combustibles gaseosos debe tener en cuenta como mínimo los siguientes aspectos básicos:
a) El tipo de gas suministrado.
b) La posibilidad de usar gases de diferentes familias si se prevé que hacia el futuro puede presentarse el suministro de un gas diferente al considerado inicialmente.
1 Se incluye esta definición dada por la ley de servicios Públicos Domiciliarios únicamente para facilitar la identificación de los tramos de la instalación que forman parte del concepto de “Red interna” establecido por la ley, pero la misma no es relevante para los efectos de esta norma.
c) Las variables del medio externo que puedan afectar la integridad y seguridad de las instalaciones para suministro de gas.
d) La demanda máxima prevista que garantice el cumplimiento de los parámetros de funcionamiento de todos los gasodomésticos y equipos que utilizan gas y que van a estar conectados en la instalación.
e) La caída de presión en la instalación, de manera que bajo las máximas condiciones probables de demanda, la presión a la entrada de cada artefacto esté dentro del rango estipulado en las Normas Técnicas Colombianas pertinentes.
f) La longitud del sistema de tuberías y el número y tipo de accesorios de acople utilizados, así como otros elementos instalados en el sistema.
g) El factor de coincidencia u otro factor asociado al cálculo de la demanda máxima probable.
h) Las previsiones técnicas para atender demandas futuras.
i) En el caso de edificaciones residenciales, las limitaciones en cuanto a la máxima presión de operación permisible en sistemas de tuberías instaladas en el interior de las edificaciones, señaladas en la NTC 3838.
Para líneas matrices en instalaciones para suministro de gas destinadas a usos residenciales, donde la presión máxima es de 34,5 kPa (5 psig), esta puede incrementar hasta 138 kPa (20 psig) previo cumplimiento de uno de los siguientes requisitos:
1) El sistema de tuberías se construye con conexiones de tipo soldado. El proceso de soldadura y los soldadores que lo apliquen deben calificarse según los parámetros establecidos en la NTC 2057.
2) El sistema de tuberías que conduce el gas debe ser instalado en conductos ventilados, dedicados exclusivamente al alojamiento de estas, de tal forma que se evite la acumulación accidental de gas combustible en el evento de un escape. Dichos conductos deben ser construidos de materiales autoextinguibles y deben estar comunicados directamente a la atmósfera exterior.
j) En el caso de edificaciones comerciales, las limitaciones en cuanto a la máxima presión de operación permisible en sistemas de tuberías instaladas en el interior de las edificaciones, señaladas en la NTC 3838.
Para líneas matrices en instalaciones para suministro de gas destinadas a usos comerciales, donde la presión máxima es de 34,5 kPa (5 psig), la presión de operación en el sistema de tuberías podrá incrementarse hasta 138 kPa (20 psig) previo cumplimiento de uno de los siguiente requisitos:
1) El sistema de tuberías se debe construir con conexiones de tipo soldado.
2) El sistema de tuberías que conduce el gas debe ser instalado en conductos ventilados, dedicados exclusivamente al alojamiento de estas, de tal forma que se evite la acumulación accidental de gas combustible en el evento de un escape. Dichos conductos deben ser construidos de materiales autoextinguibles y deben estar comunicados directamente a la atmósfera exterior.
3) El sistema de tuberías se localiza en zonas comunes conectadas directamente con el exterior.
3.2 Tipos de Regulación
Los tipos de regulación están determinados básicamente por las necesidades de reducción de presión que se presenten en la instalación para dar cumplimiento a la NTC 3838, por las condiciones particulares de consumo y para garantizar un suministro seguro del gas combustible. En el anexo 1 se presenta a título informativo algunos tipos de regulación.
3.3 Líneas Individuales
Los siguientes parámetros de diseño deben considerarse para las líneas individuales residenciales y comerciales:
a) Un factor de coincidencia u otro factor asociado al cálculo de la demanda máxima probable que garantice el suministro de gas para el correcto funcionamiento de los artefactos previstos en la instalación.
b) Los hábitos de consumo inherentes al estrato socioeconómico del sector donde se desarrolla el proyecto.
c) Si de una línea individual ya existente se desea extender el servicio a otros artefactos, o cambiar el tipo de gas suministrado, se debe revisar la capacidad de la misma y de los equipos asociados y hacer las modificaciones a que haya lugar como requisito para la prestación del servicio.
d) Se deben tener en cuenta las condiciones mínimas de ventilación del lugar destinado a la instalación de los artefactos a gas, de manera que se garantice el suministro de un volumen permanente de aire de acuerdo con lo establecido en la NTC 3631 y las recomendaciones particulares del fabricante.
4. Materiales y Equipos
Todos los materiales y equipos empleados en la construcción de instalaciones para suministro de gas deben cumplir con las normas técnicas referenciadas en este capítulo. El uso de estos materiales y equipos está supeditado a las recomendaciones y restricciones que señale el fabricante de los mismos.
El material de las tuberías debe resistir la acción del gas y del medio exterior con el que está en contacto; de lo contrario, las tuberías deben estar protegidas.
Los espesores de las paredes deben cumplir como mínimo las condiciones de ensayo de presión y de resistencia mecánica especificadas para cada material en la norma correspondiente.
4.1 Tuberías
4.1.1 Tuberías plásticas
Las tuberías plásticas deben cumplir con lo establecido en la NTC 1746 y deben emplearse únicamente en instalaciones enterradas.
4.1.2 Tuberías metálicas (rígidas y flexibles)
Para la conducción de gas en ningún caso se puede utilizar tubería de hierro fundido. Los tipos de tubería metálica que pueden ser utilizados en la construcción de las instalaciones para suministro de gas son:
a) Acero.
1) Tuberías rígidas. La tubería rígida de acero debe ser mínimo cédula 40 y debe cumplir con una de las siguientes normas, según sea aplicable:
a) ANSI/ASME B36.10: Standard for Welded and Seamless Rought-Steel Pipe.
b) NTC 3470: Tubos de acero soldados o sin costura recubiertos de cinc por inmersión en caliente, de conexión soldada (según los procedimientos de la norma ASME B31.8) o conexión roscada (del tipo cónico NPT según las especificaciones de la NTC 332).
c) ASTM A106: Standard Specification for Seamless Carbon Steel Pipe for High-Temperature Service.
d) Tuberías de acero fabricadas según la NTC 2249, de conexión roscada tipo cónico según las especificaciones de la NTC 2104.
e) Otras tuberías de acero fabricadas bajo normas ASTM de iguales o mayores especificaciones que las establecidas en la NTC 3470.
2) Tubería flexible corrugada. La tubería flexible corrugada de acero inoxidable debe cumplir los requisitos especificados en la NTC 4579.
b) Cobre. La tubería de cobre debe cumplir con una de las siguientes normas, según sea aplicable:
1) Tubería rígida de cobre sin costura, según la NTC 3944.
2) Tubería flexible de cobre sin costura, según la NTC 4128, la ASTM B280, ASTM B88 de tipo K o L, o ASTM B88M de tipo A o B.
No deben emplearse tuberías de cobre si el contenido promedio de sulfuro de hidrógeno por cada metro cúbico estándar del combustible gaseoso es superior en promedio a 7 miligramos (por cada cien pies cúbicos estándar del combustible gaseoso es superior en promedio a 0,3 granos).
c) Aluminio puro o Aleación de aluminio. Tubería rígida o flexible fabricada de aluminio puro o aleación de aluminio sujeta al cumplimiento de la norma ASTM B345.
Las tuberías de aleación de aluminio deben protegerse contra la corrosión cuando se encuentren localizadas en ambientes exteriores o en contacto con la mampostería, yeso o cuando estén sometidas a humedad repetitiva de agua, detergentes o aguas residuales.
No deben emplearse tuberías de aluminio puro en localizaciones exteriores y en aplicaciones enterradas.
4.2 Elevadores
Los elevadores están sujetos al cumplimiento de la NTC 4534.
4.3 Accesorios
Todos los accesorios utilizados para efectuar las conexiones deben permitir un suministro de gas en condiciones de hermeticidad.
4.3.1 Accesorios para tuberías de polietileno
Los accesorios se deben fabricar de conformidad con la NTC 3409, NTC 3410 y ASTM F1055.
4.3.2 Accesorios para tuberías metálicas (rígidas y flexibles)
a) Accesorios para tubería de acero. Los accesorios deben ser fabricados en acero forjado o por fundición de hierro vaciado en molde de arena y tratados térmicamente para obtener hierro maleable.
Los accesorios de acero forjado deben cumplir con la norma ANSI B16.11.
Los accesorios de hierro maleable deben cumplir con la norma ANSI B16.3 y ASTM A47.
Los accesorios al igual que las tuberías deben ser protegidos contra la corrosión.
b) Accesorios para tuberías flexibles de cobre. Los accesorios deben cumplir los requisitos de la NTC 4137 o la NTC 4138.
c) Accesorios para tubería rígida de aleación de aluminio. Los accesorios deben cumplir los requisitos de la norma ASTM B361.
d) Accesorios para tuberías flexibles corrugadas de acero inoxidable los accesorios (racores) deben cumplir los requisitos de las normas NTC 4137 o la NTC 4138.
e) Accesorios para tuberías flexibles de aleación de aluminio, los accesorios deben cumplir con las normas MIL-F-52618 C.
f) Accesorios para tuberías rígidas de cobre. Los accesorios para soldar tuberías rígidas de cobre deben cumplir los requisitos establecidos en las normas ANSI B 16.18 o ANSI B 16.22 según sea aplicable.
4.3.3 Empaques para accesorios
Los empaques para accesorios deben ser de vitón, neopreno o buna-n u otro material de características similares o superiores.
4.4 Válvulas de Corte
Las válvulas de corte deben ser de cierre rápido mediante el giro del maneral en un cuarto de vuelta.
Las válvulas deben cumplir con las siguientes normas de acuerdo con la presión de operación.
a) Las válvulas de corte con presión de operación inferiores a 6,9 kPa (1 psig) deben cumplir con lo establecido en la NTC 3740.
b) Las válvulas de corte con presión de operación desde 6,9 kPa (1 psig) hasta 862 kPa (125 psig) deben cumplir con lo establecido en la NTC 3538.
c) Cuando en tuberías de polietileno se instalen válvulas, estas deben cumplir con la NTC 2576.
4.5 Reguladores
Los reguladores se deben seleccionar de acuerdo con el tipo de gas suministrado, atendiendo de manera particular las siguientes directrices:
a) Reguladores para instalaciones atendidas con gas natural con presión de entrada en un rango definido entre 140 mbar hasta 8,6 bar; presión de salida ajustable entre 16 mbar y 23 mbar; mecanismo de alivio; capacidad hasta 7 m3/h, y conexión de entrada de hasta 50 mm. Estos reguladores deben cumplir con la NTC 3727.
b) Reguladores para instalaciones atendidas con GLP o gas natural y que forman parte de la instalación como reguladores de última etapa en sistemas de regulación de dos o más etapas. Estos reguladores deben cumplir con la NTC 3293.
c) Reguladores para instalaciones atendidas con GLP de alta o baja presión que cumplan con los requisitos establecidos en la NTC 3873.
d) Otros tipos de reguladores deben cumplir los siguientes requisitos:
1) El tamaño de las conexiones del regulador de servicio no debe exceder de 50 mm de diámetro nominal.
2) Todos los elementos de control estén dentro del regulador.
3) Que el diámetro del orificio de la válvula interna del regulador no supere la recomendación del fabricante para soportar la máxima presión de alimentación al sistema.
4) Que el asiento del orificio de la válvula interna del regulador esté hecho de un material resistente diseñado para resistir la abrasión del gas, las impurezas, el corte del orificio y la deformación permanente ocasionada por la constante presión sobre él.
5) Que sea capaz, bajo condiciones normales de operación, de regular la presión aguas abajo, dentro de los límites de precisión establecidos y que bajo condiciones de no flujo, limite la presión de descarga a un máximo de 1,5 veces la presión de descarga bajo condiciones de flujo.
4.6 Mecanismos de Control de Sobrepresión
Con el objeto de evitar sobrepresión dentro de la red interna de las instalaciones, estas deben contar con un dispositivo de seguridad que evite tales sobrepresiones cuando se presente una falla del regulador; este dispositivo puede estar integrado con el regulador o puede ser un equipo adicional que se instale junto con el regulador.
El conjunto regulador-dispositivo de seguridad debe estar dispuesto de modo que se requiera la falla simultánea de los dos dispositivos para que se presente una sobrepresión en el sistema.
a) El dispositivo de seguridad puede ser uno de los siguientes equipos:
1) Un dispositivo de alivio cargado por resorte o por piloto.
2) Un regulador monitor instalado en serie con el regulador de servicio.
3) Un regulador instalado en serie aguas arriba del regulador de servicio y ajustado para limitar la presión a la entrada del regulador de servicio a la máxima presión de operación permisible (MPOP) del sistema de tuberías aguas abajo.
4) Un dispositivo de corte automático por sobrepresión instalado en serie con el regulador de servicio. Este debe ser diseñado de manera que sea necesario restablecer manualmente el servicio cuando se presente una falla.
b) Se puede obviar el uso de los dispositivos limitadores de presión o los de alivio, siempre y cuando se cumpla la totalidad de las siguientes condiciones:
1) Que la presión de la fuente de suministro de gas sea inferior que 400 kPa (60 psi).
2) Que el regulador de presión cumpla con las siguientes características:
a) El tamaño de las conexiones del regulador de servicio no debe exceder de 50,4 mm de diámetro nominal.
b) Todos los elementos de control estén dentro del regulador.
c) Que el diámetro del orificio de la válvula interna del regulador no supere la recomendación del fabricante para soportar la máxima presión de alimentación al sistema.
d) Que el asiento del orificio de la válvula interna del regulador esté hecho de un material resistente diseñado para resistir la abrasión del gas, las impurezas, el corte del orificio y la deformación permanente ocasionada por la constante presión sobre él.
e) Que sea capaz, bajo condiciones normales de operación, de regular la presión aguas abajo, dentro de los límites de precisión establecidos y que bajo condiciones de no flujo, limite la presión de descarga a un máximo de 1,5 veces la presión de descarga bajo condiciones de flujo.
4.7 Medidores
Los medidores deben seleccionarse de acuerdo con la capacidad requerida para la máxima y mínima presión de operación prevista en el sistema y la máxima caída de presión permisible.
El medidor de gas debe garantizar la correcta medición del gas que está circulando.
Las características físicas y metrológicas de los medidores tipo diafragma deben ajustarse a las especificaciones definidas en la NTC 2826, NTC 2728, NTC 3950 o NTC 4554, según sea aplicable.
Las características físicas y metrológicas de los medidores tipo rotatorio deben cumplir con la NTC 4136.
4.8 Sellantes
En las uniones o conexiones roscadas se deben utilizar sellantes de tipo anaeróbico (trabas químicas) que cumplan los requisitos de la NTC 2635, o cinta de teflón que cumpla los requerimientos de la norma BS 7786 o MIL SPECT T-27730-A u otro sellante para gas que cumpla con las normas técnicas colombianas correspondientes.
No se permite el uso de cáñamo y pinturas para el sellado de conexiones roscadas en tuberías que conduzcan gas.
5. Requisitos de Construcción de la Instalación
5.1 Instalación de Tuberías
a) Los sistemas de tuberías para suministro de gases combustibles deben ser totalmente independientes; por esta razón, no se deben conectar con otro sistema de gas diferente al que se esté suministrando.
b) Las tuberías para suministro de gas pueden instalarse en forma oculta (embebidas, enterradas o por conductos) o visible.
c) Las tuberías flexibles pueden estar alojadas dentro de otras tuberías o camisas de material autoextinguible, dedicadas exclusivamente para este fin, con el objeto de facilitar su instalación.
d) El trazado de las tuberías en ningún momento debe afectar los elementos estructurales de la edificación tales como vigas y columnas.
Las tuberías no se pueden embeber en las paredes del foso en el cual va ubicado el ascensor.
e) Las tuberías pueden doblarse de acuerdo con lo permitido en la respectiva norma de producto de cada tipo de tubería.
f) Cuando sea imprescindible instalar tuberías con uniones mecánicas por encima de los cielos falsos, estas no podrán apoyarse en la estructura que los conforman. El cielo falso debe ser fácilmente removible y el espacio entre el cielo falso y el techo debe contar con un área de ventilación calculado así:
1) Cuando la zona que conforma el cielo falso posea aberturas que estén comunicadas directamente con el exterior, el área de entrada y salida de aire (s), expresadas en cm2 debe ser mayor o igual a 10 veces la superficie en planta (A), expresada en m2, del cielo falso a ventilar:
S (cm2) = 10 A (m2)
2) Cuando las aberturas del cielo falso se encuentren comunicadas con un recinto ventilado, el área efectiva de comunicación entre los dos espacios debe ser mayor o igual a 50 veces la superficie en planta (A) en m2 del cielo falso.
S (cm2) = 50 A (m2)
g) Se permite el trazado de tubería por encima de cielos falsos sin tener en cuenta las consideraciones de ventilación del literal f) anterior, siempre y cuando el tramo sea continuo o las uniones sean del tipo soldado.
h) Las tuberías para suministro de gas no deben pasar por dormitorios, baños, conductos de aire, chimeneas, fosos de ascensores, sótanos y similares sin ventilación, conductos para instalaciones eléctricas y de basuras, en los cuales un escape de gas se pueda esparcir a través del edificio, ni por áreas donde haya transformadores eléctricos o recipientes de combustibles líquidos o líquidos cuyos vapores o ellos mismos sean corrosivos. Cuando se requiera instalar una tubería que pase por cuartos de baño o por dormitorios, se debe exigir que el tramo de tubería sea continuo, de lo contrario debe ir encamisada.
Se exceptúa de este requisito el punto de conexión de artefactos tipo C y su respectiva válvula de corte.
Las tuberías de cobre no deben instalarse en zonas donde queden expuestas a la acción de compuestos amoniacales o aguas residuales. En caso contrario deben encamisarse sin que esta camisa requiera ventilación.
Cuando sea imprescindible atravesar juntas de dilatación puede utilizarse tubería flexible corrugada con las holguras necesarias para absorber los efectos del desplazamiento de las edificaciones.
i) Cuando por la naturaleza de la construcción resulte imprescindible la entrada de las tuberías a través de sótanos o semisótanos, se debe instalar una válvula de corte de fácil acceso en el exterior del sótano y se deben cumplir adicionalmente las siguientes condiciones de ventilación:
1) El sótano o semisótano debe tener aberturas de entrada y salida de aire en comunicación directa con el exterior, de tal forma que en caso de un escape se permita la evacuación del gas combustible menos denso que el aire por tiro natural.
2) El área de entrada y salida de aire (S) en cm² debe ser mayor o igual a diez veces la superficie en planta del recinto (A) en m², siendo el área mínima 200 cm².
S (cm2) = 10 A (m2)
3) Cuando el área de ventilación resulte superior a 200 cm², puede subdividirse en superficies de 200 cm² como mínimo, que al ser rectangulares debe tener un lado de dimensión mínima igual a 10 cm.
4) Si no es posible proporcionar al sótano ventilación natural, esta debe efectuarse mediante un conducto cuya sección transversal sea igual al área calculada anteriormente, afectándola por un factor en función de la longitud del conducto, así:
Longitud (m) Factor
3 £ L £ 10 1,5
10 < L £ 26 2,0
26 < L £ 50 2,5
j) Para gases más densos que el aire, se permite la instalación de tuberías metálicas con uniones mecánicas por sótanos o semisótanos siempre y cuando vayan dentro de una camisa metálica rígida abierta al menos por uno de sus extremos y que sobresalga hacia el exterior del sótano. Los extremos de la camisa deben distanciarse como mínimo 3 m de cualquier abertura de ventilación de sótanos. En este caso una de las aberturas del sótano a las que se refiere el literal i) de este numeral debe quedar en la parte inferior del recinto.
En caso de no poder encamisar dicha tubería, las uniones de las mismas deben ser soldadas.
k) Para gases menos densos que el aire, se permite la instalación de tuberías metálicas con uniones mecánicas por sótanos o semisótanos, siempre y cuando el área de ventilación sea el doble de lo requerido en el literal i) de este numeral, de lo contrario se debe utilizar tubería metálica con uniones soldadas o llevarlas dentro de una camisa metálica rígida, abierta al menos por uno de sus extremos y que sobresalga hacia el exterior del sótano o semisótano.
l) Se podrán emplear tuberías de polietileno enterradas de conformidad con lo establecido en la NTC 3742 y cumpliendo los requisitos del numeral 5.1.1 de la presente norma. Cuando la tubería aflore por encima del nivel del piso dentro de la edificación debe estar protegida por una camisa o conducto de un material permitido por esta norma para las instalaciones en el interior de las edificaciones, hasta el sitio del elevador (véase el numeral 5.1.1.3).
m) Ubicación de válvulas de corte de gas. Todas las válvulas de corte de gas previstas en la conexión de los artefactos de consumo deben estar ubicadas en sitios que garanticen el fácil acceso y operación.
Todas las salidas de gas deben permitir la localización de los artefactos, de forma tal que no estén expuestos a corrientes de aire.
En el caso de los equipos de cocción la válvula debe instalarse de tal manera que el accionamiento de la misma no se realice sobre la zona de cocción.
Cada salida debe estar provista de un tapón metálico, utilizando el sellante especificado y su remoción sólo debe realizarse cuando se efectúe la conexión del artefacto. No está permitido el uso de tapones de madera, corcho u otro material inadecuado.
5.1.1 Tuberías ocultas
5.1.1.1 Tuberías enterradas. Para esta aplicación se deben utilizar tuberías plásticas o tuberías metálicas que cumplan los requisitos de los numerales 4.1.1 y 4.1.2, respectivamente. En la instalación de tuberías enterradas se debe cumplir como mínimo con los siguientes requisitos:
a) Debe instalarse por debajo del nivel del suelo, en una zanja con una profundidad mínima de 46 cm cuando la tubería pueda estar expuesta a cargas por tráfico vehicular o similar; y 30 cm cuando el trazado sea por zonas de jardín o donde no esté expuesta a cargas debidas a tráfico vehicular o similar. Cuando por razones justificadas no pueda respetarse la profundidad antes indicada, debe construirse un sistema que brinde protección mecánica mediante alguna de las siguientes opciones: un conducto o camisa, una losa de hormigón o una plancha metálica, de manera que se reduzcan las cargas sobre la tubería a valores equivalentes a los de la profundidad inicialmente prevista.
b) No se deben instalar tuberías por debajo de cimientos, zapatas y placas de cimentación.
c) Cuando se requiera pasar tuberías a través de elementos como cimientos, muros y estructuras que soportan cargas tales que se generen asentamientos que puedan afectar las tuberías, se deben encamisar.
d) En los cruces de tuberías de gas con conducciones de otros servicios debe disponerse, entre las partes más cercanas de las dos instalaciones, de una distancia como mínimo igual a 10 cm, en los puntos de cruce y de 20 cm en recorridos paralelos (véase la Figura 1). Cuando por causas justificadas no puedan mantenerse las distancias mínimas entre servicios, se deben interponer entre ambos pantallas de fibrocemento, material cerámico u otro material de similares características mecánicas y dieléctricas. Siempre que sea posible deben aumentarse las distancias anteriormente relacionadas, de tal manera que se reduzcan para ambas instalaciones los riesgos inherentes a la ejecución de trabajos de reparación y mantenimiento de las instalaciones vecinas.
e) Las tuberías enterradas deben instalarse sobre un lecho libre de piedras o aristas cortantes o sobre una capa de arena de 5 cm de espesor, siguiendo el procedimiento que a continuación se indica:
1) Una vez instaladas las tuberías en el fondo de la zanja, se cubren con una capa de 10 cm del material seleccionado de la misma zanja, compactado con un apisonador manual. El material de relleno no debe ser plástico y debe estar exento de materia orgánica.
2) Se debe emplear un sistema de señalización, el cual puede ser una cinta que debe tener un ancho mínimo de 10 cm, ubicada a una distancia comprendida entre 20 cm y 30 cm por debajo del nivel del suelo.
3) Posteriormente, se continúa el relleno de la zanja en capas de máximo 20 cm, con apisonador, hasta lograr la compactación requerida

Figura 1. Distancias mínimas entre tuberías que conducen gas cuando se instalan enterradas y tuberías de otros servicios
f) Si se utilizan tuberías de polietileno se deben tener en cuenta los criterios establecidos en la NTC 3742 excepto en cuanto a las profundidades de instalación, adicionalmente se deben considerar los siguientes aspectos:
1) La instalación dentro de la zanja debe efectuarse en forma serpenteada para facilitar los movimientos de contracción y dilatación que puedan presentarse.
2) Cuando se haga un cambio de dirección sin codo, se debe dar a la tubería una curvatura con un radio mínimo igual a 25 veces el diámetro externo del tubo. No se deben permitir uniones en la curvatura.
3) Las válvulas de seccionamiento deben anclarse a fin de evitar que se transmitan a los tubos los esfuerzos producidos al maniobrarlas.
g) Cuando se utilicen tuberías metálicas enterradas deben tenerse en cuenta los siguientes aspectos:
1) Por ningún motivo se deben conectar a las tuberías metálicas para gas las conexiones a tierra de redes y artefactos eléctricos de cualquier naturaleza.
2) Las tuberías metálicas enterradas deben protegerse contra la corrosión, atendiendo lo señalado en el numeral 5.3.
3) Las tuberías pueden curvarse siempre y cuando lo permita la respectiva norma de producto de la tubería.
4) No se permitirán conexiones de tipo roscado en tuberías metálicas enterradas. La única conexión aceptada para esta aplicación es la de tipo soldado.
5.1.1.2 Tuberías embebidas. Las tuberías metálicas se pueden embeber excepto en los casos en que esta norma o la norma particular de producto de la tubería o las instrucciones del fabricante de la misma lo prohíban.
Las tuberías embebidas están sujetas al cumplimiento de los siguientes requisitos:
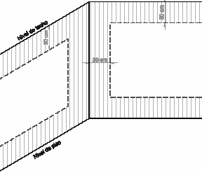
a) El trazado de este tipo de instalación debe definirse de manera que la ubicación de las tuberías se efectúe en sitios que brinden protección contra daño mecánico. Dicho trazado debe realizarse preferiblemente en una zona comprendida dentro de una franja de 30 cm, medida desde el nivel de techo, la losa del piso o las esquinas del recinto, tal como se muestra en la Figura 2.
Se exceptúan de este requisito las derivaciones para los puntos de conexión a los artefactos.
Las tuberías embebidas en muros deben tener un recubrimiento en mortero mezcla 1:3, con un espesor mínimo de 20 mm, alrededor de toda la tubería.
b) En el caso de conexiones roscadas embebidas, se deben proteger las roscas contra la corrosión de acuerdo con lo establecido en el numeral 5.3 de esta norma. Se exceptúa de la protección las roscas de materiales no suceptibles de ser afectadas por la corrosión.
c) Las tuberías embebidas en pisos deben quedar instaladas como mínimo a 20 mm, por debajo del nivel del piso terminado.
d) El concreto no debe contener acelerantes, agregados de escoria, o productos amoniacales, ni aditivos que contengan cloruros, sulfatos y nitratos, debido a que estos productos atacan los metales.
e) Las tuberías embebidas no deben estar en contacto físico con otras estructuras metálicas tales como varillas de refuerzo o conductores eléctricos neutros (véase la Figura 3).
f) Las cavidades que deban hacerse para embeber las tuberías no deben comprometer muros estructurales que afecten la solidez del inmueble.
g) Las distancias mínimas entre las tuberías embebidas que conducen gas y las tuberías de otros servicios deben ser las que se indican en la Tabla de la Figura 4. Si no es posible cumplir con las distancias señaladas en la Tabla de la Figura 4 se debe proporcionar un aislamiento entre las tuberías.

Figura 2. Zona de trazado de instalaciones de tuberías embebidas

Figura 3. Detalle de la instalación de las tuberías embebidas

| Tubería de otros servicios | Curso paralelo | Cruce |
| Conducción agua caliente | 3 cm | 1 cm |
| Conducción eléctrica | 3 cm | 1 cm |
| Conducción de vapor | 5 cm | 5 cm |
| Chimeneas | 5 cm | 5 cm |
Figura 4. Distancias mínimas entre tuberías que conducen gas instaladas a la vista o embebidas y tuberías de otros servicios
5.1.1.3 Tuberías por camisas y conductos. Cuando se requiera encamisar las tuberías que conducen gas se deben cumplir los siguientes requisitos, según sea aplicable:
a) Cuando se realice un encamisado por ventilación, los extremos de las camisas deben ser abiertos y ventilados al exterior. Si ello no es posible basta con comunicar el extremo más alto con el exterior y el otro se debe mantener sellado.
b) Cuando se requiera encamisar para proteger contra daño mecánico la camisa debe ser rígida y tener un espesor mínimo de 1,5 mm.
c) Cuando se deseen ocultar o disimular las tuberías por motivos estéticos los conductos deben ser fabricados con materiales autoextinguibles que no originen par galvánico con las tuberías que contienen. Se podrán emplear los siguientes materiales en la fabricación de conductos:
1) Conductos metálicos de mínimo 0,8 mm de espesor de pared.
2) Conductos en mampostería con paredes de 50 mm de espesor como mínimo.
d) Los conductos deben ser continuos en todo su recorrido; si su extremo superior no está abierto debe disponer de rejillas de ventilación a máximo 30 cm de sus extremos para la evacuación de los eventuales escapes que puedan ocasionarse en las tuberías alojadas en su interior. La superficie exterior de las camisas y conductos debe estar recubierta mediante una protección que impida el ataque del ambiente exterior (véase la Figura 5).
e) No debe existir contacto físico entre las camisas o conductos metálicos, con las estructuras metálicas de la edificación ni con cualquier otra tubería metálica.
f) Cuando las tuberías verticales estén localizadas en sitios susceptibles de recibir golpes como por ejemplo en garajes o zonas de parqueo, estas deben protegerse con un elemento cuya altura mínima sea de un metro (véase la Figura 6).

Figura 5. Tuberías por conductos
5.1.2 Tuberías a la vista
En la instalación de tuberías a la vista deben tenerse en cuenta los siguientes requisitos:
a) Se debe garantizar la seguridad, alineamiento y estabilidad mediante la adopción de mecanismos de amarre y arriostramiento.
b) Las tuberías aéreas se deben apoyar sobre elementos estables, rígidos y seguros de la edificación.

Figura 6. Protección mecánica de tubería que conducen gas mediante camisas y conductos
c) Las tuberías a la vista deben soportarse con un dispositivo de anclaje de acuerdo con lo establecido en el numeral 5.1.3 de esta norma.
d) Se deben tomar las medidas necesarias para procurar la libre contracción y dilatación de los tubos con los cambios de temperatura.
e) Las tuberías a la vista deben estar protegidas contra los agentes nocivos del medio donde se encuentren expuestas, mediante un sistema adecuado, de conformidad con lo dispuesto en el numeral 5.3.
f) Las tuberías para suministro de gas no deben estar en contacto con conducciones de vapor, agua caliente, o eléctricas. Las distancias mínimas entre una instalación de gas a la vista y otro tipo de conducción deben ser las relacionadas en la Figura 4.
g) El trazado de las tuberías a la vista debe realizarse de manera que estas queden protegidas contra daños mecánicos.
5.1.3 Dispositivos de anclaje
a) Se deben ubicar con una distancia máxima de conformidad con las especificaciones de la Tabla 1.
Tabla 1. Distancias para dispositivos de anclaje
| Tubería | Diámetro nominal | Separación máxima (m) | ||
| Mm | Pulgadas | Horizontal | Vertical | |
| Rígida de cobre Rígida de aleación de aluminio | 12,70 19,05 25,40 | 1/2 3/4 1 | 1,0 1,5 1,5 | 1,5 2,0 2,0 |
| Rígida de acero | 12,70 19,05 25,40 31,75 >31,75 | 1/2 3/4 1 1 1/4 >1 1/4 | 1,5 2,0 2,0 2,5 3,0 | 2,0 3,0 3,0 3,0 4,0 |
| Flexible de cobre Flexible de aleación de aluminio | 9,53 12,70 19,05 25,40 >25,40 | 3/8 ½ 3/4 1 >1 | 1,0 1,0 1,0 1,5 1,5 | Un soporte en cada piso |
| Tubería corrugada flexible de acero | 9,53 12,70 19,05 25,40 | 3/8 1/2 3/4 1 | 1,2 1,8 2,5 2,5 | 3 3 3 3 |
b) En el caso de tuberías metálicas, debe intercalarse entre el tubo y la abrazadera un material dieléctrico que evite el contacto directo de los dos metales.
c) En caso de ser necesario se debe colocar un dispositivo de anclaje cercano a la válvula de paso de cada artefacto.
d) En caso de ser necesario los sitios de cambios de dirección deben colocarse dispositivos de fijación adicionales.
e) En cualquier caso, en los tramos verticales debe colocarse como mínimo un dispositivo de fijación por nivel o piso.
f) Cuando las tuberías están instaladas cerca al techo de las edificaciones, en el diseño y colocación de los soportes se deben tener en cuenta las distancias mínimas que faciliten el mantenimiento de la instalación de acuerdo con la Tabla de la Figura 7.

| Diámetro tubería Pulgadas | Distancia mínima (d) techo-pared-otro tubo |
| 1/2 - 3/4 mayor 3/4 | 15 mm diámetro del tubo |
Figura 7. Fijación de tuberías aéreas.
5.2 Métodos de Acoplamiento de Tuberías
5.2.1 Conexiones (uniones) mecánicas
5.2.1.1 Conexiones (uniones) roscadas. Las conexiones roscadas se utilizan para la unión de tuberías metálicas rígidas de acero y sus correspondientes accesorios.
En las conexiones roscadas se deben tener en cuenta las siguientes consideraciones:
a) La unión roscada debe ser del tipo cónico NPT acorde con la NTC 332 para conexiones en tuberías de acero que cumplan los requisitos de la NTC 3470 o del tipo establecido en la NTC 2104 para las tuberías que cumplan con los requerimientos de la NTC 2249.
b) Otro tipo de uniones roscadas deben estar especificadas para gas y cumplir las normas técnicas correspondientes.
c) Se debe garantizar que la porción de la rosca que queda expuesta esté debidamente protegida contra la corrosión.
d) No deben usarse uniones de tipo roscado para tuberías de diámetro mayor que 100,8 mm (4 pulgadas)
e) Se requiere el uso de sellantes que cumplan con los requisitos del numeral 4.8.
5.2.1.2 Uniones con empaques. Se pueden utilizar en los empalmes donde sea necesario efectuar labores de revisión, reparación o desmonte de las partes, tales como en el acople al medidor, en las uniones universales, bridas o en los acoples rápidos. Para los conectores rápidos debe cumplirse lo establecido en la norma ANSI Z21.41.
El sello de los dos cuerpos que integran la unión universal debe hacerse mediante empaques “o-ring” o planos, de vitón, buna-n, neopreno o materiales similares que no sean atacados por el gas.
Se prohíbe el uso de cauchos naturales para estas aplicaciones. Tampoco se permite el uso de uniones universales con asiento cónico metálico.
5.2.1.3 Otras conexiones (uniones) mecánicas. Las uniones mecánicas se utilizan en la unión de tuberías metálicas rígidas o flexibles y sus correspondientes accesorios. En las conexiones mecánicas se deben tener en cuenta las siguientes consideraciones:
a) Para conexiones abocinadas los accesorios deben cumplir los requisitos de la NTC 4137 ó de la NTC 4138. De igual forma el abocinado de la tubería debe efectuarse de conformidad con lo establecido en la norma SAE J533.
b) En la conexión tipo anillo de ajuste, la hermeticidad se asegura mediante el anillo metálico que al ser comprimido por la tuerca, se ajusta en la pared del tubo. Una vez utilizado este tipo de unión, no se debe volver a emplear debido a que el anillo ya deformado no garantiza la hermeticidad.
c) Otro tipo de uniones mecánicas se pueden emplear únicamente donde la experiencia o ensayos hayan demostrado que son adecuadas para las condiciones locales y donde se prevean desde el diseño las consideraciones para impedir la eventual separación de las juntas.
5.2.2 Conexiones (uniones) soldadas
Las conexiones soldadas se utilizan en la unión de tuberías metálicas rígidas y flexibles y sus correspondientes accesorios.
En las conexiones soldadas se deben tener en cuenta las siguientes consideraciones:
a) Para soldar tuberías de acero, se deben cumplir los requisitos de la NTC 2057.
b) Las tuberías de cobre que trabajan a baja presión (véase la NTC 3838) se pueden unir empleando soldadura capilar blanda (de bajo punto de fusión), que cumpla con lo establecido en la NTC 2700 y el proceso de aplicación cumpla con lo establecido en la ASTM B 828. Las tuberías de cobre que trabajan a media presión (véase la NTC 3838), deben cumplir lo establecido en la NTC 4128 y se deben unir empleando soldadura capilar fuerte (de alto punto de fusión).
5.2.3 Conexiones para tuberías plásticas
La tubería plástica de polietileno y sus acoples deben unirse por el método de fusión térmica o mediante el uso de uniones mecánicas. Estas uniones mecánicas deben cumplir con los requisitos establecidos en la NTC 1746. El sistema que se utilice debe ser compatible con los materiales que se estén uniendo, teniendo en cuenta las siguientes consideraciones:
a) No deben utilizarse conexiones roscadas en tuberías de polietileno.
b) No se permite el uso de pegantes o sellantes químicos.
c) La junta debe tener un valor de resistencia longitudinal al estiramiento como mínimo igual a la resistencia a la tracción de la tubería plástica.
d) Las uniones por fusión térmica deben hacerse de acuerdo con la ASTM D 2657 y deben cumplir las recomendaciones dadas por el fabricante para garantizar que su resistencia es como mínimo equivalente a la de la tubería plástica.
e) No debe usarse el método de fusión térmica para unir tuberías fabricadas de materiales plásticos incompatibles.
f) Cuando se empleen conexiones mecánicas por compresión, debe usarse un segmento tubular o anillo rígido interno en conjunción con el acople y sus dimensiones deben ser tales que entre a ras con la tubería y se extienda por lo menos a lo largo de la longitud total del acople mecánico. No deben usarse anillos seccionados o de ajuste.
g) La unión a tope de tuberías con accesorios debe cumplir con los requisitos de la NTC 3409.
h) La unión de accesorios tipo campana debe cumplir con lo establecido en la NTC 3410.
i) Los acoples mecánicos deben ensayarse y cumplir con lo establecido en la NTC 1746.
j) Para uniones con accesorios por el método de electrofusión debe cumplirse lo establecido en la norma ASTM F1055.
5.3 Protección Contra Corrosión
Las tuberías, equipos y demás elementos que conforman una instalación, deben resistir la acción del gas y del medio exterior con el que estén en contacto. Según se requiera, se debe aplicar un sistema de protección contra la corrosión a las instalaciones de conformidad con las recomendaciones del fabricante para cada uno de los elementos mencionados o con las normas técnicas aplicables.
5.4 Ubicación de las Válvulas de Corte
Con el propósito de seccionar las instalaciones para suministro de gas, se requiere dotarlas con válvulas de corte de accionamiento manual ubicadas como mínimo en los siguientes puntos (véase la Figura 8):
a) En la acometida.
b) A la entrada de cada centro de medición colectivo, cuando el número de medidores, atendidos por la misma acometida sea mayor o igual a tres.
c) A la entrada de cada medidor cuando se tienen centros de medición colectivos.
d) En cada punto de salida de la instalación destinado a la conexión de los artefactos.
e) Antes de todo regulador colectivo.

Figura 8. Esquema de ubicación de válvulas en las líneas de servicio para suministro de gas.
5.5 Centros de Medición
Deben estar conformados por los equipos y elementos requeridos para efectuar la medición, la regulación y el control del suministro del servicio de gas para uno o varios usuarios.
5.5.1 Ubicación y protección de los centros de medición
El lugar destinado para la ubicación de los centros de medición debe cumplir como mínimo con las siguientes especificaciones:
a) Su localización debe ser en el exterior de las viviendas o en áreas comunes ventiladas, con facilidad de acceso para su lectura y de dimensiones tales que permitan la realización de trabajos de mantenimiento, control, inspección, reparación y reposición.
b) En el caso de localizar el centro de medición en áreas comunes no ventiladas dentro de la edificación, debe realizarse la instalación en armarios o nichos que cumplan los siguientes requisitos:
1) El armario o nicho debe ser hermético hacia el área común.
2) El armario o nicho debe cumplir las siguientes condiciones de ventilación siempre y cuando esta ventilación no se dé hacia el área común.
a) El área de entrada y salida de aire (S) del armario en cm² debe ser mayor o igual a diez veces la superficie en planta de dicho armario (A) en m², siendo el área mínima 20 cm².
)m(A)cm(S2210?)m(A)cm(S2250?)m(A)cm(S2210?
b) Si no es posible proporcionar al armario ventilación natural, esta debe efectuarse mediante un conducto cuya sección transversal sea igual al área calculada anteriormente, afectándola por un factor en función de la longitud del conducto, así:
Longitud (m) Factor
3 £ L £ 10 1,5
10 < L £ 26 2,0
26 < L £ 50 2,5
c) En caso de requerirse iluminación en los armarios, deben instalarse lámparas a prueba de explosión y el interruptor de encendido se debe localizar en el exterior del mismo.
c) El centro de medición debe aislarse de interruptores, motores u otros artefactos eléctricos que puedan producir chispas. Está totalmente prohibido el almacenamiento de materiales combustibles en los alrededores del centro de medición.
d) El sitio debe estar protegido de la acción de agentes externos tales como impacto, daños mecánicos, humedad excesiva, agentes corrosivos y en general, de cualquier factor que pueda producir el deterioro acelerado de los equipos.
e) Para gases más densos que el aire, los medidores no pueden ubicarse en un local cuyo nivel esté por debajo del nivel del terreno, como en el caso de sótanos o semisótanos, pues existe el peligro de acumulación de gases causado por escapes.
f) Los medidores no se deben ubicar a nivel del piso; la mínima distancia que se permite con respecto a este, es de 50 mm.
5.5.2 Instalación de los centros de medición
a) Los medidores se deben instalar en forma vertical, nivelados y conectados a tuberías que garanticen la estabilidad del equipo y la hermeticidad del sistema.
b) Cada medidor individual del centro de medición colectivo debe estar marcado de tal manera que identifique con exactitud la vivienda a la cual registra el consumo.
c) Los centros de medición deben disponer de válvulas que permitan el suministro o suspensión del servicio, ubicadas de conformidad con lo definido en el numeral 5.4.
d) El venteo del regulador debe quedar orientado hacia abajo o en sentido lateral, protegido de la entrada de agua e insectos.
5.5.3 Ubicación de los reguladores
La ubicación de los reguladores debe efectuarse atendiendo lo establecido en el numeral 3.2 y si no se encuentran en el mismo sitio del medidor, los reguladores deben cumplir, además de lo estipulado para los medidores, las siguientes condiciones:
a) Debe instalarse una válvula de corte antes del regulador.
b) Cuando un regulador de presión, provisto de válvula de alivio, esté localizado en un lugar donde una falla del mismo puede generar condiciones de riesgo, se requiere la instalación de una tubería de venteo hacia el exterior del recinto con capacidad para evacuar el volumen de gas previsto.
Cuando en el mismo lugar estén instalados varios reguladores, cada uno debe disponer de una tubería de venteo independiente instalada de tal forma que se evite su obstrucción por la entrada de agua, insectos o cualquier otro elemento. En ningún caso dichas tuberías deben conectarse a los conductos que transportan los productos de la combustión de los artefactos que funcionan con gas.
c) La ubicación de los reguladores se puede realizar de acuerdo con los siguientes criterios:
1) Regulación de única etapa. El regulador se debe localizar entre la línea secundaria y el exterior de la edificación.
2) Regulación en dos etapas.
a) En la línea matriz, el regulador se localiza entre la línea secundaria y el exterior de la edificación, para la primera etapa. El regulador de segunda etapa puede localizarse en el exterior o en áreas comunes ventiladas. Se pueden ubicar en áreas comunes no ventiladas dentro de la edificación previo cumplimiento de los siguientes requisitos:
- El armario o nicho sea hermético hacia el área común.
- El armario o nicho cumpla las condiciones de ventilación establecidas en el numeral 5.5.1 literal b ítem 2.
b) Regulación en dos etapas, en líneas individuales. El regulador de segunda etapa se puede ubicar dentro de la vivienda, siempre y cuando se satisfagan los requisitos de seguridad establecidos para el alivio de sobrepresión de los reguladores instalados en recintos interiores que establece la NTC 3293.
3) Regulación en tres etapas.
a) Primera etapa: El regulador se localiza entre la línea secundaria y el exterior de la edificación.
b) Segunda etapa: El regulador se localiza en el exterior o en las áreas comunes de fácil acceso dentro de la edificación (ubicado en los armarios o nichos) siempre y cuando las condiciones de ventilación del área no permitan la acumulación del gas combustible en el interior de la edificación.
c) Tercera etapa: El regulador puede estar ubicado dentro de la vivienda, siempre y cuando se satisfagan los requisitos de seguridad establecidos para el alivio de sobrepresión de los reguladores instalados en recintos interiores que establece la NTC 3293.
6. Verificación y Ensayos
Las verificaciones y ensayos contemplados en esta norma son aplicables a instalaciones que se van a poner en servicio una vez construidas y cuando se efectúen cambios de combustible en una instalación existente. En procesos de revisión posteriores y en reparaciones menores o adiciones no se requiere efectuar el ensayo de hermeticidad especificado en esta norma, siempre y cuando se utilice un método que permita verificar la hermeticidad del sistema.
Como requisito para la puesta en servicio debe efectuarse una verificación detallada de las especificaciones de diseño y construcción haciendo especial énfasis en los siguientes aspectos:
6.1 Verificaciones
6.1.1 Trazado de la instalación para suministro de gas
Se debe efectuar una inspección visual del recorrido de la instalación para determinar la correcta ubicación del sistema de tuberías, de los puntos de salida y de las diferentes válvulas de corte de la instalación.
Se debe realizar la verificación de las distancias mínimas con respecto a líneas de otros servicios.
Se deben comprobar las condiciones de ventilación de los recintos donde se ubicarán los gasodomésticos.
6.1.2 Componentes de la instalación
Debe comprobarse que las dimensiones del sistema de tuberías estén de acuerdo con lo estipulado en el diseño, verificando que sus componentes hayan sido evaluados, de conformidad con lo establecido en la presente norma o en las normas que sean aplicables.
Adicionalmente deben revisarse los siguientes aspectos:
a) Protección del sistema de tuberías, contra corrosión y daños mecánicos.
b) Verificación del sistema de acoplamiento de las tuberías, de acuerdo con las exigencias de la presente norma.
c) Selección adecuada de los equipos de medición y regulación, de conformidad con los requerimientos de consumo.
d) Ubicación e instalación correcta de los equipos de medición y regulación y protección de los mismos contra daños mecánicos.
6.2 Ensayos
6.2.1 Ensayo de hermeticidad
Los ensayos de hermeticidad deben contemplar los siguientes aspectos:
a) Antes de su puesta en servicio, toda instalación para suministro de gas debe someterse a un ensayo de hermeticidad y proporcionar resultados satisfactorios (véase la Tabla 2).
Tabla 2. Presiones para el ensayo de hermeticidad

b) El ensayo debe realizarse a temperatura ambiente con aire o gas inerte; se prohíbe el uso de oxígeno, agua y gases combustibles para este propósito.
c) Los ensayos se deben realizar antes de la instalación de los medidores, reguladores y artefactos de consumo.
d) Cuando se utilicen sellantes anaeróbicos en las conexiones roscadas, el ensayo de hermeticidad del sistema de tuberías se debe efectuar después de transcurrido el tiempo de curado especificado por el fabricante del producto.
e) Durante el desarrollo de los ensayos se deben tener en cuenta las siguientes consideraciones:
1) Se debe tomar las precauciones necesarias para garantizar las condiciones mínimas de seguridad, tanto del personal que efectúe la prueba como de la instalación.
2) Se debe identificar la totalidad de salidas de la instalación.
3) Se debe efectuar una purga o barrido del sistema de tuberías de tal manera que se garantice la eliminación de cualquier material extraño en el interior de las tuberías.
4) Las salidas deben estar provistas de tapones que proporcionen hermeticidad. No se permite el uso de madera, corcho u otro material inadecuado.
5) Las válvulas ubicadas tanto en los extremos de la instalación como aquellas localizadas en los tramos intermedios, deben estar abiertas. Durante el ensayo se irán maniobrando las válvulas para comprobar su hermeticidad.
6) Se deben utilizar los siguientes equipos o elementos: compresor o fuente de suministro de aire, agua jabonosa y cabezas de ensayo.
7) El procedimiento consiste en inyectar aire hasta lograr estabilizar la presión de ensayo especificada en la Tabla 2, desconectar luego la fuente de suministro y tomar la lectura de presión para establecer la hermeticidad una vez haya transcurrido el tiempo mínimo de ensayo.
f) Los manómetros empleados en el ensayo deben ser tales que la presión de ensayo se encuentre entre el 25 % y el 75 % de su rango de medición, y tenga un grado de precisión D según la norma ASME B40.100 o una clase de precisión 5 según la NTC 2263 (OIML 17).
g) Cuando por alguna circunstancia sea necesario interrumpir los ensayos, debe verificarse que el sistema quede en condiciones de seguridad satisfactorias.
h) Al realizar el ensayo de hermeticidad no se debe presentar variación en la lectura indicada por el manómetro que registra la presión de ensayo. En caso contrario se considera que el sistema no es hermético.
i) Cuando al efectuar el ensayo de hermeticidad se determine la existencia de escapes se deben efectuar las correcciones correspondientes y someter nuevamente el sistema a un ensayo de presión.
j) En la detección de escapes bajo ninguna circunstancia deben usarse fósforos, velas, llamas abiertas u otros métodos que constituyan una fuente de ignición.
7. Puesta en Servicio
El proceso de cargar con gas combustible una tubería que estaba llena de aire, requiere que dentro de la tubería no se generen mezclas inflamables o que estas no se liberen dentro de espacios confinados. Para tal efecto se deben tener en cuenta los siguientes requisitos:
a) Una vez verificadas las instalaciones en lo relacionado con las condiciones de hermeticidad, se debe hacer la purga correspondiente para luego proceder a la conexión de los equipos de medición y regulación.
b) Se debe comprobar la hermeticidad de los componentes del centro de medición y de sus conexiones con el gas suministrado a la presión de servicio y utilizando agua jabonosa o detectores de gases combustibles.
c) Se debe efectuar la gasificación de las instalaciones garantizando unas condiciones mínimas de seguridad relacionadas con los siguientes aspectos:
1) Ventilación del recinto donde se ubican las salidas de gas.
2) Ausencia de fuentes de ignición en cercanías a la instalación de gas.
3) Durante la gasificación no debe haber personal ajeno a la empresa suministradora cerca al centro de medición y a los artefactos.
4) Verificación del taponamiento de todas las salidas de gas, que no van a ser puestas en servicio inicialmente.
d) Una vez gasificado el sistema se procede a la conexión de los diferentes artefactos y a la verificación de la correcta operación de los mismos en función del tipo de gas suministrado.
e) De toda instalación debe quedar un documento en el cual se deje constancia de que el usuario ha sido informado sobre los requisitos mínimos de seguridad para la adecuada operación de la instalación y del material impreso (cartillas, folletos, etc.) que le haya sido entregado para tal efecto.
8. Normas que deben Consultarse
Las siguientes normas contienen disposiciones que, mediante la referencia dentro de este texto, constituyen la integridad de esta norma. En el momento de la publicación eran válidas las ediciones indicadas. Todas las normas están sujetas a actualización, los participantes, mediante acuerdos basados en esta norma, deben investigar la posibilidad de aplicar la última versión de las normas mencionadas a continuación.
NTC 332: 1994, Tubería Metálica. Roscas para tubería destinada a propósitos generales. Dimensiones en pulgada.
NTC 1746: 1999, Plásticos. Tubos y accesorios termoplásticos para la conducción de gases a presión.
NTC 2057: 1985, Metalurgia. Código para calificar el procedimiento para soldar y la habilidad del soldador.
NTC 2104: 1996, Tubería metálica. Rosca para tubos en donde la presión-hermética de la junta se hace en los filetes.
NTC 2249: 1989, Tubería metálica. Tubos de acero al carbono, con o sin costura, para usos comunes. Aptos para ser roscados.
NTC 2263: 1987, Metrología. Manómetros indicadores de presión, manómetros de vacío y manómetros de presión-vacío para usos generales.
NTC 2576: 1993, Aparatos mecánicos. Válvulas y mecanismos termoplásticos de corte accionados manualmente para sistemas de distribución de gas.
NTC 2635: 1989, Productos químicos para uso industrial. Compuestos sellantes para uniones de tuberías y accesorios para gas natural y gases licuados del petróleo
NTC 2700: 1996, Metales no ferrosos. Soldadura tipo suave. Composición química y forma de suministro.
NTC 2728: 1990, Máquinas y equipos. Medidores de gas tipo diafragma.
NTC 2826: 1990, Aparatos mecánicos. Dispositivos generales para medidores de volumen de gas.
NTC 2863: 1991, Metales no ferrosos. Resina como fundente para núcleos de soldadura.
NTC 3293:1995, Aparatos mecánicos. Reguladores de presión para aparatos domésticos que funcionan con gas.
NTC 3409: 1997, Plásticos. Accesorios de polietileno (PE) para unión por fusión a tope con tubería de polietileno.
NTC 3410: 1994, Plásticos. Accesorios de polietileno tipo campana para tubería de polietileno con diámetro exterior controlado tipo IPS o CTS.
NTC 3470: 2000, Tubería metálica. Tubos de acero soldados y sin costura, negros y recubiertos de cinc por inmersión en caliente.
NTC 3527: 1997, Definiciones y reglas comunes aplicables al ensayo de artefactos para uso doméstico y comercial que emplean gases combustibles.
NTC 3538: 1996, Aparatos mecánicos. Válvulas metálicas para gas accionadas manualmente para uso en sistemas de tubería con presiones manométricas de servicio desde 6.8 kPa (1 psi) hasta 861 kPa (125 psi). Tamaños desde 6,35 mm (¼ pulgadas) hasta 50,8 mm (2 pulgadas).
NTC 3631: 1994, Artefactos de gas. Ventilación de recintos donde se instalan artefactos que emplean gases combustibles para uso doméstico, comercial e industrial.
NTC 3727: 1999, Reguladores de presión para gas natural con dispositivo interno para alivio de sobrepresión.
NTC 3728: 2001, Gasoductos. Líneas de transporte y redes de distribución de gas.
NTC 3740: 1996, Válvulas metálicas para gas, accionadas manualmente para uso en sistemas de tuberías con presiones manométricas de servicio inferiores a 0,069 bar (1 psi).
NTC 3742: 1999, Práctica normalizada para instalación subterránea de tubos termoplásticos de presión.
NTC 3838: 1999, Gasoductos. Presiones de operación permisibles para el transporte, distribución y suministro de gases combustibles.
NTC 3853: 1998, Equipo, accesorios, manejo y transporte de GLP
NTC 3853-1: 1996, Instalación de sistemas de GLP. (Gases licuados de petróleo)
NTC 3873: 1996, Reguladores de presión para GLP.
NTC 3944: 1996, Tubería rígida de cobre sin costura. Tamaños normalizados.
NTC 3950: 1996, Medidores de gas tipo diafragma. Características físicas.
NTC 4128: 1997, Tubería flexible de cobre sin costura para gas natural y gases licuados del petróleo.
NTC 4136: 1997, Medidores de gas tipo rotatorio.
NTC 4137: 1997, Accesorios para tubería de refrigeración, especificaciones generales
NTC 4128: 1997, Tubería flexible de cobre sin costura para gas natural y gases licuados del petróleo (GLP).
NTC 4137: 1997, Accesorios para tubería de refrigeración. Especificaciones generales.
NTC 4138: 1997, Accesorios para tubería de automóvil.
NTC 4534: 1998, Dispositivos de transición para uso en las instalaciones de suministro de gas (elevadores).
NTC 4554: 1998, Medidores de gas tipo diafragma con capacidad superior a 16 m3/h. Características físicas.
NTC 4579: 1999, Tubería corrugada de acero inoxidable para uso con combustibles gaseosos en edificaciones residenciales y comerciales.
ANSI B16.3: 1998, Malleable Iron Threaded Fittings Classes 150 and 300.
ANSI B16.11: 1996, Forged Fittings, Socket-Welding and Threaded
ANSI B 16.18: 1984, Cast Copper Alloy Solder Joint Pressure Fittings R(1994)
ANSI B 16.22: 1995, Wrought Copper and Copper Alloy Solder Joint Pressure Fitttings.
ANSI Z21.41: Quick - Disconnect Devices for Use with Gas Fuel Appliances.
ANSI/ASME B36.10: 1996, Welded and Seamless Wrought Steel Pipe.
ASME B31.8: 1999, Gas Transmission and Distribution Piping Systems.
ASME B40.100: 1998, Pressure Gauges and Gauge Attachments Incorporating ASME B40.1-1998 and ASME B40.7 Pressure. Indicating Dial Type - Elastic Element.
ASTM A 47: 1999, Standard Specification for Ferritic Malleable Iron Castings.
ASTM A106: 1999, Standard Specification for Seamless Carbon Steel Pipe for High-Temperature Service.
ASTM B88: 1999, Standard Specification for Seamless Copper Water Tube.
ASTM B280: 1999, Standard Specification for Seamless Copper Tube for Air Conditioning and Refrigeration Field Service.
ASTM B 828: 2000, Standard Practice for Making Capillary Joints by Soldering of Cooper and Cooper Alloy Tube and Fittings.
ASTM B345: 2000, Standard Specification for Aluminum and Aluminum-Alloy Seamless Pipe and Seamless Extruded Tube for Gas and Oil Transmission and Distribution Piping Systems.
ASTM B361: 1995, Standard Specification for Factory-Made Wrought Aluminum and Aluminum-Alloy Welding Fittings.
BS 7786: 1995, Unsintered PTFE Tape. General Requirements.
ASTM D2657: 1997, Standard Practice for Heat Fusion Joining of Polyolefin Pipe and Fittings.
ASTM F1055: 1998, Standard Specification for Electrofusion Type Polyethylene Fittings for Ouside Diameter Controlled Polyethylene Pipe and Tubing.
SAE J533: 1999, Flares for Tubing.
MIL-T-27730 A: 1998, Tape, Antiseize, Polytetrafluoroethylene, with Despenser.
MIL-F-52618/1C: 1990, Fittings, Pipe Aluminum-alloy (Threaded) 150 Pound 90 Degree Elbows, Tees, Crosses, 45 Degree Elbow and Couplings (straight sizes).
MIL-F-52618/2C: 1990, Fittings, Pipe Aluminum-alloy (Threaded) 150 Pound Reducers and Close and Open Pattern Return Bends
MIL-F-52618/3C: 1990, Fittings, Pipe Aluminum-alloy (Threaded) 150 pound 90 Degree Elbow (reducing sizes).
MIL-F-52618/4C: 1990, Fittings, Pipe Aluminum-alloy (Threaded) 150 Pound Tees (Reducing Sizes).
MIL-F-52618/5C: 1990, Fittings, Pipe Aluminum-alloy (Threaded) 150 Pound 90 Degree and 45 Degree Street Elbows.
MIL-F-52618/6C: 1990, Fittings, Pipe, Aluminum-alloy (Threaded) 150-Pound Caps
MIL-F-52618/7C: 1990, Fittings, Pipe Aluminum-alloy (Threaded) 150 Pound Square Head and Square Socket Plugs.
MIL-F-52618/8C: 1990, Fittings, Pipe Aluminum-alloy (Threaded) 150 Pound Outside Head, Inside Head and Face Bushings.
MIL-F-52618/8D: 1990, Fittings, Pipe Aluminum-alloy (Threaded) 150 Pound.
MIL-F-52618/9A: 1990, Fittings, Pipe Aluminum-alloy (Threaded) 150 Pound Crosses (Reducing Sizes).
Anexo A (Informativo)
Tipos de regulación
A continuación se describen algunos tipos de regulación:
A.1 Regulación de Unica Etapa
Hace referencia a las instalaciones en las cuales se regula directamente la presión de la línea secundaria (de la acometida) a la presión de la línea individual.
A.2 Regulación en Dos Etapas
Cuando por las condiciones particulares de la instalación y teniendo en cuenta las limitaciones de máxima presión permisible dentro de las edificaciones, se requiera controlar la presión del gas en dos etapas, la regulación se puede efectuar de la siguiente manera:
Primera etapa: se reduce la presión de la línea secundaria (de la acometida) hasta un valor máximo de presión igual que el permisible en la línea matriz o en la línea individual según el caso; si se trata de línea matriz. En el caso de líneas individuales se reduce la presión de la línea individual hasta un valor máximo de presión igual que el permisible en las líneas individuales y a la cual se efectúa la medición.
Segunda etapa: En el caso de líneas matrices, se reduce la presión de la línea matriz hasta la presión de las líneas individuales.
En el caso de líneas individuales se reduce la presión de la línea individual hasta la presión de servicio de los artefactos de consumo.
A.3 Regulación en Tres Etapas
Cuando por las condiciones particulares de la instalación se requiera controlar la presión del gas en tres etapas, la regulación se puede efectuar de la siguiente manera:
Primera etapa: se reduce la presión de la línea secundaria (de la acometida) hasta un valor máximo de presión igual que el permisible en la línea matriz.
Segunda etapa: se reduce la presión de la línea matriz hasta un valor máximo de presión igual que el permisible en las líneas individuales y a la cual se efectúa la medición.
Tercera etapa: se reduce la presión de la línea individual hasta la presión de servicio de los artefactos de consumo.
A.4 Otros Tipos de Regulación
Otros sistemas de regulación en más etapas están sujetos al cumplimiento de los niveles de presión permitidos por la NTC 3838.
Prólogo
El Instituto Colombiano de Normas Técnicas y Certificación, Icontec, es el organismo nacional de normalización, según el Decreto 2269 de 1993.
El Icontec es una entidad de carácter privado, sin ánimo de lucro, cuya Misión es fundamental para brindar soporte y desarrollo al productor y protección al consumidor. Colabora con el sector gubernamental y apoya al sector privado del país, para lograr ventajas competitivas en los mercados interno y externo.
La representación de todos los sectores involucrados en el proceso de Normalización Técnica está garantizada por los Comités Técnicos y el período de Consulta Pública, este último caracterizado por la participación del público en general.
La NTC 2505 (Tercera actualización) fue ratificada por el Consejo Directivo el 2001-08-01 y reaprobada 2001-09-26.
Esta norma está sujeta a ser actualizada permanentemente con el objeto de que responda en todo momento a las necesidades y exigencias actuales.
A continuación se relacionan las empresas que colaboraron en el estudio de esta norma a través de su participación en el Comité Técnico 410201 Gasoductos.
| ACOGAS EMPRESAS PUBLICAS DE MEDELLIN GAS NATURAL DEL CENTRO S.A. E.S.P. GAS NATURAL S.A. E.S.P. GASES DE LA GUAJIRA S.A. E.S.P. GASES DE OCCIDENTE S.A. E.S.P. GASES DEL CARIBE S.A. E.S.P. GASES DEL NORTE DEL VALLE S.A. E.S.P. | LLANOGAS S.A. E.S.P. MADIGAS ING. REPRESENTANTES SEGURIDAD GAS SUPERINTENDENCIA DE SERVICIOS PUBLICOS SURTIGAS S.A. E.S.P. UNIFIX S.A. |
Además de las anteriores, en Consulta Pública el Proyecto se puso a consideración de las siguientes empresas:
| AFOMDIGAS ALUMINA S.A. COLMENA CONFEDEGAS CONSTRUCTORA NORBERTO ODEBRECHT S.A. ECOPETROL EXTRUCOL S.A. GARNICA VILLAMIZAR LTDA. GAS NATURAL DEL ORIENTE S.A. E.S.P. | GRUPO REDES INDUSTRIA SUPERIOR DE ARTEFACTOS INDUSTRIAS CIMSA LTDA. INDUSTRIAS HACEB S.A. INDUSTRIAS HUMCAR LTDA. INDUSTRIAS METALICAS BACHUE METROGAS DE COLOMBIA S.A E.S.P. MINISTERIO DE MINAS Y ENERGIA SUPERINTENDENCIA DE INDUSTRIA Y COMERCIO |
El Icontec cuenta con un Centro de Información que pone a disposición de los interesados normas internacionales, regionales y nacionales.
Dirección de Normalización
NORMA TÉCNICA NTC
COLOMBIANA 3631
2003-08-26
VENTILACION DE RECINTOS INTERIORES DONDE SE INSTALAN ARTEFACTOS QUE EMPLEAN GASES COMBUSTIBLES PARA USO DOMÉSTICO, COMERCIAL E INDUSTRIAL
E: VENTILATION OF INNER SPACES WHERE THERE ARE GAS EQUIPMENT FOR DOMESTIC, COMMERCIAL AND INDUSTRIAL PURPOSES
CORRESPONDENCIA:
DESCRIPTORES: ventilación; corriente de gas.
I.C.S.: 91.140.30
Editada por el Instituto Colombiano de Normas Técnicas y Certificación (ICONTEC)Apartado 14237 Bogotá, D.C. - Tel. 6078888 - Fax 2221435
Prohibida su reproducción Primera actualización
Editada 2003-09-09
Prólogo
El Instituto Colombiano de Normas Técnicas y Certificación, Icontec, es el organismo nacional de normalización, según el Decreto 2269 de 1993.
Icontec es una entidad de carácter privado, sin ánimo de lucro, cuya Misión es fundamental para brindar soporte y desarrollo al productor y protección al consumidor. Colabora con el sector gubernamental y apoya al sector privado del país, para lograr ventajas competitivas en los mercados interno y externo.
La representación de todos los sectores involucrados en el proceso de Normalización Técnica está garantizada por los Comités Técnicos y el período de Consulta Pública, este último caracterizado por la participación del público en general.
La NTC 3631 (Primera actualización) fue ratificada por el Consejo Directivo del 2003-08-26.
Esta norma está sujeta a ser actualizada permanentemente con el objeto de que responda en todo momento a las necesidades y exigencias actuales.
A continuación se relacionan las empresas que colaboraron en el estudio de esta norma a través de su participación en el Comité Técnico 120 Aparatos domésticos y equipos industriales que utilizan gas.
| ALCANOS DE COLOMBIA AQUA-REDES CDT DE GAS CHALLENGER COLCERAMICA EMPRESAS PUBLICAS DE MEDELLIN GAS NATURAL GASES DE OCCIDENTE GASES DEL CARIBE GASES DEL NORTE DEL VALLE GASES DEL QUINDIO GASES DE LA GUAJIRA ICASA INCELT | INDUSEL INDUSTRIAS CIMSA INDUSTRIAS HACEB INDUSTRIAS HUMCAR LLANOGAS MABE COLOMBIA MARGEN PROYECTOS MAYUN LTDA. MUNDOGAS SUDELEC SURTIGAS SUPERINTENDENCIA DE SERVICIOS PUBLICOS TECOM LTDA. UNIFIX |
Además de las anteriores, en Consulta Pública el Proyecto se puso a consideración de las siguientes empresas:
| HENKEL COLOMBIANA INDUSTRIAS SUPERIOR DE ARTEFACTOS MINISTERIO DE MINAS Y ENERGIA WHIRLPOOL COLOMBIA | PVC GERFOR SUPERINTENDENCIA DE INDUSTRIA Y COMERCIO |
Icontec cuenta con un Centro de Información que pone a disposición de los interesados normas internacionales, regionales y nacionales.
Dirección de Normalización
Ventilación de recintos interiores donde se instalan Artefactos que emplean gases combustibles para uso doméstico, comercial e industrial
1. Objeto y Campo de Aplicación
1.1 La presente norma define los requisitos y establece los métodos para la ventilación de los recintos interiores donde se instalan artefactos a gas para uso doméstico, comercial e industrial.
1.2 Alcance
Las especificaciones de esta norma son aplicables a los recintos en donde se instalan los artefactos a gas para uso doméstico, comercial e industrial al interior de cualquier tipo de edificación, que requiera disponer de aire circulante internamente para satisfacer las demandas de aire de combustión, renovación y dilución.
Para los efectos de esta norma no se deben tener en cuenta los artefactos a gas con circuitos de combustión sellados o de cámara estanca instalados en el recinto.
Nota. Para la ventilación de los recintos en donde se instalen artefactos a gas para uso comercial e industrial se deben tener en cuenta las recomendaciones del fabricante del artefacto según sea aplicable.
2. Definiciones
Para los propósitos de esta norma, se aplican los términos y definiciones incluidos en la NTC 3527, junto con los siguientes:
2.1 Aire circulante
Aire de enfriamiento, calefacción o ventilación, distribuido en los espacios habitables de una edificación.
2.2 Aire de combustión
Aire necesario para llevar a cabo la combustión completa del gas en el quemador de un artefacto. Se entiende por combustión la rápida oxidación de los gases combustibles, acompañada por la producción de calor o de luz y calor.
La combustión completa del gas, sólo es posible en presencia de un suministro adecuado de oxígeno. Si el suministro de oxígeno es insuficiente, la combustión será incompleta y se fomentará la producción de monóxido de carbono.
2.3 Aire de dilución
Aire que entra al cortatiros o regulador de tiro de un artefacto, mezclándose con los productos de la combustión del gas, o cantidad de aire necesaria para diluir hasta niveles seguros las concentraciones de productos de combustión que no sean evacuados hacia la atmósfera exterior, o ambos que quedan atrapados dentro del recinto donde está instalado el artefacto.
2.4 Aire de renovación
Aire necesario para renovar o reponer el aire consumido por la combustión del gas de un artefacto instalado en un recinto interior.
2.5 Espacio confinado
Recinto interior cuyo volumen es menor de 3,4 m3 por cada kilovatio de potencia nominal agregada o conjunta de todos los artefactos a gas instalados
Nota. La potencia nominal agregada o conjunta no contempla los artefactos a gas con circuitos de combustión sellados o de cámara estanca.
2.6 Espacio no confinado
Recinto interior cuyo volumen es mayor o igual a 3,4 m3 por cada kilovatio de potencia nominal agregada o conjunta de todos los artefactos a gas instalados.
Se consideran parte integral del espacio no confinado, uno o varios recintos adyacentes que se comunican en forma directa con el recinto donde están instalados los artefactos a través de aberturas permanentes de circulación peatonal o de tamaño comparable (tales como corredores y pasadizos), que no disponen de puertas o elementos análogos que permitan interrumpir dicha comunicación directa.
2.7 Infiltración de aire
Proceso natural de renovación del aire circulante dentro de un recinto interior.
2.8 Potencia nominal
Cantidad total de energía calórica por unidad de tiempo, producida por un artefacto a gas y declarada por el fabricante del artefacto. La potencia nominal se expresa en kilovatios (kW).
2.9 Recinto interior
Espacio comprendido dentro de la distribución de una edificación, cuyas características constructivas le impiden el contacto directo con la atmósfera exterior mediante cualquier tipo de separación arquitectónica temporal o permanente tales como divisiones, paredes, puertas, ventanas, etc.
3. Especificaciones Generales Concernientes a la ventilación de Recintos Interiores
3.1 Requerimientos Generales de Ventilación de Recintos
Los artefactos a gas instalados en recintos interiores deben localizarse de tal forma que no interfieran con la circulación libre y espontánea del aire de combustión, renovación y dilución.
Las demandas de aire de combustión, renovación y dilución de los artefactos a gas, diseñados para acoplarse a conductos para la evacuación de los productos de combustión del gas hacia la atmósfera exterior por tiro natural, deben satisfacerse mediante alguno de los métodos de ventilación que se describen en los numerales 4.1 y 4.2.
En caso de que la infiltración natural de aire no sea suficiente para suplir las demandas de aire de combustión, renovación y dilución de los artefactos a gas instalados en un recinto interior, se debe introducir aire adicional hacia el recinto, proveniente de la atmósfera exterior.
En las edificaciones donde los artefactos a gas estén instalados en recintos interiores, además de las demandas de aire de combustión, renovación y dilución, deben tenerse en cuenta los requerimientos de aire circulante de elementos tales como extractores, ventiladores, secadores y chimeneas, así como el necesario para procesos de evacuación de humos.
3.2 Restricciones para la Ubicación de Artefactos
Los recintos destinados a dormitorios y los recintos de baño o ducha, no deben contener artefactos a gas de circuito abierto. En este tipo de recintos sólo se puede instalar artefactos a gas de circuito estanco, Tipo C, de acuerdo con lo establecido en las normas particulares de instalación.
4. Métodos de Ventilación de los Recintos Interiores
4.1 Espacios no Confinados
La infiltración de aire será suficiente para la ventilación de los recintos interiores que se definen en el numeral 2.6, siempre y cuando se satisfagan simultáneamente los requerimientos adicionales de aire a que se refiere el numeral 3.1.
4.2 Espacios Confinados
La ventilación de los recintos interiores que corresponden a la definición del numeral 2.5 podrá lograrse mediante cualquiera de los siguientes métodos:
4.2.1 Todo el aire proveniente de otros recintos dentro de la edificación
El espacio confinado debe dotarse de aberturas permanentes, que comuniquen en forma directa con uno o más recintos aledaños, de un volumen tal que el volumen conjunto de todos los espacios comunicados entre sí satisfaga los criterios de ventilación que corresponden a un espacio no confinado de acuerdo con las especificaciones del numeral 4.1. La potencia nominal agregada o conjunta de todos los artefactos a gas instalados en los espacios comunicados entre sí debe sumarse para verificar el cumplimiento de estos requisitos.
4.2.1.1 Combinación de espacios en el mismo piso
En estos casos deben dotarse dos aberturas, una superior y una inferior, cada una debe tener un área libre mínima igual al mayor valor entre 645 cm2 ó 22 cm2 por cada kilovatio de potencia nominal agregada o conjunta de todos los artefactos a gas instalados en el espacio confinado.
La abertura superior debe comenzar a una distancia no menor a 180 cm del piso, medida en sentido vertical ascendente, y la inferior debe comenzar a una distancia no mayor de 30 cm del suelo, medida en sentido vertical ascendente (véase la Figura 1). La dimensión menor de tales aberturas no debe ser inferior a 8 cm.
4.2.1.2 Combinación de espacios en diferentes pisos
Los volúmenes de espacios en diferentes pisos se deben considerar como espacios comunicados cuando tales espacios están conectados con una o más aberturas localizadas en puertas o pisos, que tengan un área libre mínima igual a 44 cm2 por cada kilovatio de potencia nominal agregada o conjunta de todos los artefactos a gas instalados en el espacio confinado.
4.2.2 Todo el aire proveniente del exterior
El espacio confinado debe ser comunicado directamente con el exterior de acuerdo con los Métodos 1 ó 2. La dimensión mínima de las aberturas de ventilación no debe ser menor de 8 cm. En caso de que se utilicen conductos, estos deben tener el área de la sección transversal igual al área libre de las aberturas a las cuales son conectados.
4.2.2.1 Método 1
Dos aberturas permanentes, la superior debe comenzar a una distancia no menor a 180 cm del piso, medida en sentido vertical ascendente y la inferior, a una distancia no mayor de 30 cm del suelo, medidos en sentido vertical ascendente. Cada una de estas aberturas debe comunicar el espacio confinado con la atmósfera exterior, bien sea en forma directa o a través de conductos de ventilación.
a) Cuando el espacio se comunica directamente con el exterior o cuando se comunica con el exterior mediante conductos verticales (véase la Figura 2 y 3), cada abertura debe tener una área libre mínima de 6 cm2 por cada kilovatio de potencia nominal agregada o conjunta de todos los artefactos a gas instalados en el espacio confinado.
b) Cuando el espacio se comunica con el exterior mediante conductos horizontales (véase la Figura 4), cada abertura debe tener un área libre no menor de 11 cm2 por cada kilovatio de potencia nominal agregada o conjunta de todos los artefactos a gas instalados en el espacio confinado.
c) Cuando el espacio se comunica con el exterior mediante conductos colectivos distribuidos en varias plantas o niveles de una misma edificación, las aberturas permanentes a que se refiere el numeral 4.2.2.1 literal b) podrán comunicarse entre sí a través de dos conductos colectivos verticales independientes, uno para el desalojo del aire viciado y el otro para la admisión de aire de combustión, renovación y dilución, requerido para todos los artefactos a gas instalados en los espacios confinados que se intercomunican mediante tales conductos verticales colectivos de ventilación.
Los conductos verticales colectivos de ventilación deben tener una área de sección interior acorde con la potencia nominal agregada o conjunta de todos los artefactos a gas instalados en los espacios confinados que se comunican entre sí de conformidad con los criterios para dimensiones establecidos en el numeral 4.2.2.1 literal a)
Los conductos colectivos para el desalojo de aire viciado deben llevar a su vez, dos aberturas permanentes con un área libre igual al área de la sección interior del respectivo conducto: una en el extremo inferior y la otra en el extremo superior o terminal, recubiertas con rejillas o celosías de protección.
Los conductos colectivos para la admisión de aire de combustión, renovación y dilución deben llevar una abertura permanente en el extremo inferior recubierta con rejillas o celosías de protección cuya área libre sea igual al área de la sección interior del respectivo conducto.
Las aberturas permanentes que comunican los conductos colectivos de ventilación en cada espacio confinado deben ubicarse y ajustarse a los criterios para dimensiones establecidos en el numeral 4.2.2.1 literal a), para la potencia nominal agregada conjunta de todos los artefactos a gas instalados en cada espacio confinado en particular.
En ningún caso podrá emplearse un sólo conducto colectivo vertical de ventilación que sirva simultáneamente para el desalojo de aire viciado y para la admisión del aire de combustión, renovación y dilución.
Para el caso de gases más densos que el aire únicamente se debe emplear el Método 1.
4.2.2.2 Método 2
Una abertura permanente, la cual debe comenzar a una distancia no menor a 180 cm del piso, medida en sentido vertical ascendente. Este método se permite en espacios donde los artefactos a gas tienen una separación al menos de 2,5 cm a sus lados y en su parte posterior y de 16 cm del frente del artefacto. La abertura debe comunicar el espacio confinado con la atmósfera exterior, bien sea en forma directa o a través de un conducto individual, vertical u horizontal, y debe tener un área libre mínima igual al mayor de los siguientes valores:
a) 11 cm2 por cada kilovatio de potencia nominal agregada o conjunta de todos los artefactos a gas instalados en el espacio confinado y,
b) La suma de las áreas de los conectores de todos los artefactos instalados en el espacio confinado, según sea aplicable.
4.2.3 Consideraciones adicionales sobre la ubicación de las aberturas permanentes de ventilación de los espacios confinados
La ubicación de las aberturas permanentes de ventilación debe cumplir con las distancias señaladas en la Figura 5.
4.3 Suministro mecánico de aire para combustión. Métodos alternos para la ventilación de espacios confinados
Cuando el aire para combustión se suministra por medios mecánicos, este debe provenir del exterior a una tasa mínima de 0,034 m3/min por cada kilovatio instalado en el recinto. En estos casos para cada artefacto, se deben instalar dispositivos de seguridad, que impidan el funcionamiento del quemador principal de los artefactos a gas cuando los sistemas especiales de ventilación no están operando o cuando operen en forma deficiente o defectuosa.
Cuando existen extractores, se debe suministrar aire adicional para reemplazar el aire extraído.
Cuando el aire de combustión es provisto por un sistema mecánico de ventilación de la edificación, este sistema debe entregar la tasa de aire para combustión en forma adicional al requerido para ventilación.
5. Especificaciones para la construcción de celosías, rejillas y conductos para la ventilación de Recintos Internos
Las aberturas permanentes a las que se refiere el numeral 4.2 deben protegerse en forma adecuada para impedir el acceso de material extraño lluvia o granizo, que pueden obstaculizar el flujo de aire hacia los recintos interiores.
Las celosías y rejillas dispuestas sobre las aberturas permanentes para su protección, así como los conductos de ventilación (individuales o colectivos) podrán construirse de cualquier tipo de material que ofrezca una resistencia mecánica equivalente a una lámina delgada de acero galvanizado de 0,86 mm de espesor.
Al efectuar los cálculos para la determinación de las áreas libres mínimas de las aberturas permanentes se debe tener en cuenta el efecto obstaculizador del flujo de aire de celosías, y rejillas, así como el grado de inclinación de los listones de estas con respecto a la horizontal.
Si se desconoce el área interior libre de una rejilla o celosía utilizada para recubrir aberturas permanentes de ventilación de un espacio confinado, debe determinarse que sólo el 60 % del área total de cada abertura es espacio libre, en el caso que se utilicen celosías y rejillas metálicas; o el 20 % del área total de cada abertura, para el caso en que se utilicen celosías y rejillas de madera.
Si las aberturas permanentes se recubren de malla, la dimensión menor de los espacios libres de la urdimbre de hilos no debe ser inferior a 6,3 mm.
Los listones de las celosías y rejillas de ventilación deben bloquearse en una posición fija de apertura, o conectarse con los artefactos a gas en tal forma que se abran automáticamente cuando uno de ellos se encienda. En estos casos se deben proporcionar dispositivos de seguridad que impidan el funcionamiento de los artefactos cuando las celosías o persianas se encuentren en posición cerrada.
6. Referencias Normativas
Los siguientes documentos normativos referenciados son indispensables para la aplicación de este documento normativo. Para referencias fechadas, se aplica únicamente la edición citada. Para referencias no fechadas, se aplica la última edición del documento normativo referenciado (incluida cualquier corrección).
NTC 3527:1997, Definiciones y reglas comunes aplicables al ensayo de artefactos para uso doméstico y comercial que emplean gases combustibles.
7. Documento de Referencia
Información suministrada por el comité (Véase el Anexo B).

Figura 1. Ventilación de espacios confinados: todo el aire proveniente de otros recintos dentro de la edificación

Figura 2. Ventilación de espacios confinados: aberturas permanentes que comunican en forma directa con la atmósfera exterior

Figura 3. Ventilación de espacios confinados: aberturas permanentes que comunican con la atmósfera exterior mediante conductos verticales

Figura 4. Ventilación de espacios confinados: aberturas permanentes que comunican con la atmósfera exterior mediante conductos horizontales

Figura 5. Ubicación de las aberturas permanentes de ventilación
ANEXO A
(Informativo)
NORMAS RELACIONADAS
A continuación se indican algunas normas y documentos relacionados con el tema, que pueden consultarse a manera informativa.
NTC 2505:2001, Instalaciones para suministro de gas destinadas a usos residenciales y comerciales.
GRI-93/0316, Topical Report. Analysis of Combustion Air Openings to the Outdoors: Preliminary Results. (Gas Research Institute).
ASHRAE Handbook 2001, Fundamentals. (American Society of Heating, Refrigerating, and Air-Conditioning Engineers).
ANEXO B
(Informativo)
BIBLIOGRAFIA
[1] National Fire Protection Association. NFPA 54. National Fuel Gas Code. 8th Edition, Quincy, MA (USA), 2002.
[2] Instituto Colombiano de Normas Técnicas y Certificación. Dimensionamiento, construcción, montaje y evaluación de los sistemas para la evacuación de los productos de la combustión generados por los artefactos que funcionan con gas. Primera actualización, Bogotá, D. C., 2002 (NTC 3833).